Voorstraat 44
4153 AM, BEESD
131 m2 wonen
117 m2 perceel
5 kamers
€ 545.000,- k.k.
Kan ik dit huis betalen? Wat worden mijn maandlasten?Deel met je vrienden
Volledige omschrijving
Volledig gerenoveerde en verduurzaamde woning met een rijke historie en modern comfort.
Na 25 jaar als Chinees-Indisch restaurant te hebben gediend, is deze eindwoning volledig gerenoveerd en omgetoverd tot een prachtige, volwaardige woning. De karakteristieke elementen zijn behouden, terwijl het huis nu beschikt over alle moderne gemakken die je van een eigentijdse woning mag verwachten.
De woning is recent vernieuwd met een aanbouw, gloednieuwe keuken en badkamer, beiden van topkwaliteit en ontworpen met oog voor detail. De moderne afwerking creëert een frisse, eigentijdse sfeer, perfect voor een comfortabele leefomgeving. De overkapping met glazen schuifpui biedt een heerlijke plek om te ontspannen.
Beesd is een sfeervol dorp in de Betuwe, bekend om zijn rustige ligging en groene omgeving. De historische kern straalt een gemoedelijke sfeer uit en biedt een charmante mix van winkels, horecagelegenheden en karakteristieke panden. De rustige ligging maakt het een ideale plek om te genieten van de natuur, met talloze mogelijkheden om te wandelen of fietsen in de omgeving. Dankzij de nabijheid van de A2 en het treinstation is Beesd bovendien uitstekend bereikbaar, wat het tot een fijne woon- en werkplek maakt.
Indeling
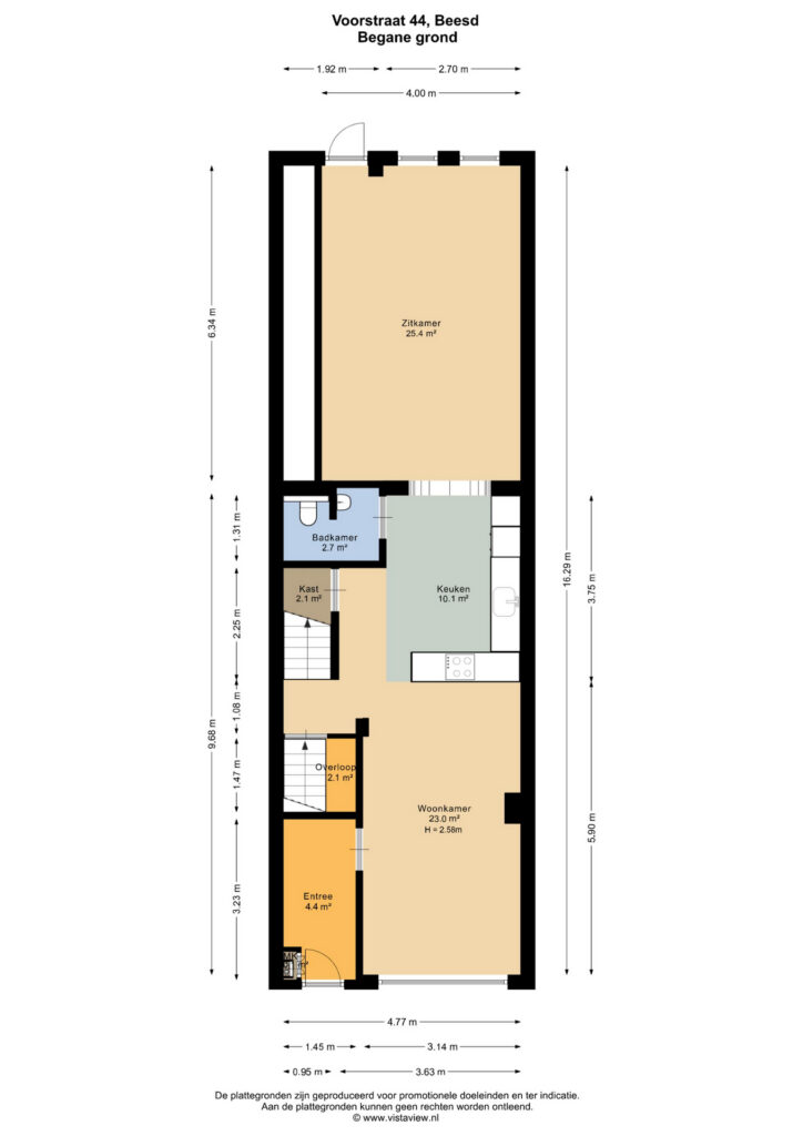
Begane grond
Via de voordeur met glas in lood bereik je de entree van de woning. Hier bevindt direct aan de linkerzijde de volledig vernieuwde meterkast. Vanuit de hal loop je door naar de woon-/eetkamer waar het daglicht naar binnen stroomt door de grote raampartij. Aangrenzend vind je de moderne open keuken voorzien van een inductiekookplaat met Bora afzuiging, koel-/vriescombinatie, vaatwasser, Quooker en combi oven. Alle inbouwapparatuur betreft een A merk met garantie.
De keuken is het verbindingspunt van de woonkamer en de zitkamer. Naast de keukenruimte tref je de trapopgang naar de eerste verdieping met daaronder een trapkast voor berging. Daarnaast loop je vanuit de keuken naar de moderne toiletruimte dat beschikt over een hangend toilet en fontein. Vervolgens bereik je de woonkamer door de unieke doorgang met boogvorm. Door deze indeling creëer je echt afzonderlijke ruimtes voor verschillende gelegenheden, de indeling is aan jou.
Vanuit de woonkamer loop je naar de achtertuin. Hier bevindt zich de nieuwe geplaatste overkapping. Dit is de perfecte ruimte voor wie op zoek is naar een rustige plek om te ontsnappen aan de dagelijkse hectiek. De grote glazen schuifpui zorgt voor een overvloed aan natuurlijk licht en maakt de overgang van binnen naar buiten naadloos.
Eerste verdieping
Via de trap bereik je de ruime overloop van de eerste verdieping. Deze verdieping beschikt over drie slaapkamers. De grootste slaapkamer beschikt over een ruimte van maar liefst 18,5 m² en openslaande deuren dat toegang biedt tot een balkon. De overige slaapkamers beschikken over een ruimte van 6,3 en 11 m². De kleinste slaapkamer beschikt over een dakkapel. De moderne badkamer beschikt over een inloopdouche en dubbele wastafel met wastafelmeubel. Het tweede toilet bevindt zich in een separate ruimte. Tot slot is er een separate ruimte waar zich de opstelling bevindt voor de wasmachine en droger.
Kelder
De kelder van 19,3 m² biedt volop ruimte voor opslag en biedt veel mogelijkheden om extra functionaliteit aan de woning toe te voegen. Of je het nu gebruikt voor het opbergen van seizoensgebonden spullen, het bewaren van wijn of het inrichten van een werk- of hobbyruimte, de kelder is praktisch en veelzijdig.
Voormalig restaurant op de begane grond met woonruimte op de eerste verdieping;
– Het object biedt tal van mogelijkheden, is volledig gemoderniseerd en verduurzaamd;
– Is verbouwd met goede materialen en is goed afgewerkt met o.a. gestucte wanden en plafonds;
– De vloerafwerking op de eerste verdieping mag je nog zelf uitzoeken en de wanden/deurposten dienen nog geschilderd te worden.
– Nieuwe uitbouw op de begane grond, nieuwe kunststof kozijnen, gerenoveerd dak; nieuwe elektra;
– Verwarming en koeling door middel van nieuw geplaatste airco’s;
– Recent geplaatste nieuwe overkapping in de tuin;
– Door de renovatie is de woning is van een energielabel G naar A gegaan!;
– Gelegen in het sfeervolle centrum van Beesd;
– Gemengde bestemming: wonen is toegestaan (raadpleeg het omgevingsloket voor meer informatie);
– Aan de voorzijde van de woning zijn er nog mogelijkheden voor bijvoorbeeld een winkel.
Mis de unieke kans niet om te wonen in een volledig gerenoveerde woning met alle moderne gemakken en een stukje geschiedenis. Tijdens de bezichtiging zullen wij de oude foto’s voor de verbouwing laten zien. En dan zie je helemaal het grote verschil.
Aanvaarding: in overleg, kan snel.
Energielabel A
Interesse in dit huis? Schakel direct jouw eigen NVM-aankoopmakelaar in.
De NVM-aankoopmakelaar komt op voor jouw belang en bespaart tijd, geld en zorgen.
Adressen van collega NVM-aankoopmakelaars in Vianen zijn te vinden op Funda.
Kenmerken
Status |
Beschikbaar |
Toegevoegd |
25-10-2025 |
Vraagprijs |
€ 545.000,- k.k. |
Appartement vve bijdrage |
€ 0,- |
Woonoppervlakte |
131 m2 |
Perceeloppervlakte |
117 m2 |
Externe bergruimte |
13 m2 |
Gebouwgebonden buitenruimte |
6 m2 |
Overige inpandige ruimte |
19 m2 |
Inhoud |
516 m3 |
Aantal kamers |
5 |
Aantal slaapkamers |
3 |
Bouwvorm |
Bestaande bouw |
Energieklasse |
A |
Soort(en) warm water |
Elektrische Boiler Eigendom |
Heb je vragen over deze woning?
Neem contact op met
Mirjam Groen
Vestiging
Vianen
Wil je ook door ons geholpen worden? Doe onze gratis huiswaarde check!
Je hebt de keuze uit een online waardebepaling of de nauwkeurige waardebepaling. Beide zijn gratis. Uiteraard is het altijd mogelijk om na de online waardebepaling alsnog een afspraak te maken voor een nauwkeurige waardebepaling. Ga je voor een accurate en complete waardebepaling of voor snelheid en gemak?
