Pauwoogweide 1
3437 VV, NIEUWEGEIN
167 m2 wonen
185 m2 perceel
5 kamers
€ 590.000,- k.k.
Kan ik dit huis betalen? Wat worden mijn maandlasten?Deel met je vrienden
Volledige omschrijving
Welkom aan de Pauwoogweide 1 te Nieuwegein!
Inleiding
Aan de Pauwoogweide 1 in Nieuwegein, gelegen in de geliefde wijk Batau Noord, staat deze ruime en energiezuinige woning met maar liefst 167 m² woonoppervlakte. De woning is volledig geïsoleerd, beschikt over energielabel A en is voorzien van 10 zonnepanelen, wat zorgt voor lage energielasten. Met vier ruime slaapkamers, vloerverwarming op de begane grond en maar liefst twee balkons is dit een ideaal gezinshuis. De woning heeft een royale voortuin en biedt volop leefruimte, zowel binnen als buiten.
Begane grond
Via de entree komt u in de hal met meterkast, toilet (vernieuwd in 2021) en een handige opbergkast. Aan de voorzijde van de woning bevindt zich een aangebouwde berging van 7 m², ideaal voor fietsen en extra opslag.
De ruime woonkamer van 42 m² is voorzien van een stijlvolle stenen vloer met comfortabele vloerverwarming en biedt volop ruimte voor een gezellige zit- en eethoek.
De halfopen keuken van 11 m², vernieuwd in 2021, is compleet uitgerust met een koelkast, vriezer, magnetron, oven en vaatwasser. Vanuit de keuken heeft u direct toegang tot de tuin.
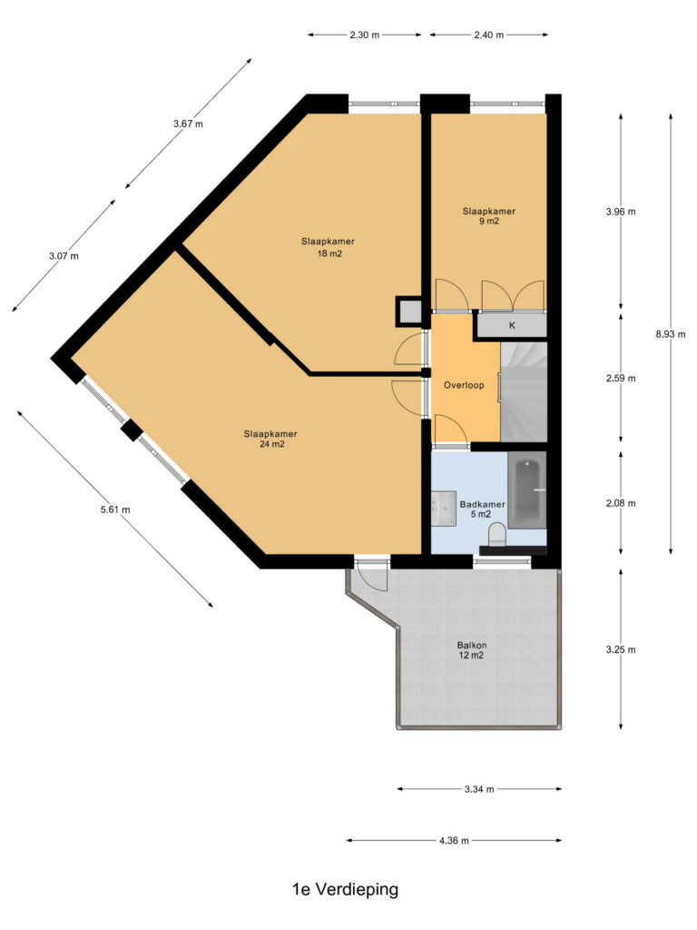
Eerste verdieping
Op de eerste verdieping bevinden zich drie ruime slaapkamers van respectievelijk 24 m², 18 m² en 9 m². De nette badkamer van 5 m² is voorzien van een ligbad, wastafel en toilet en is in 2021 volledig vernieuwd.
Daarnaast beschikt deze verdieping over een balkon van 12 m², gelegen op het zuidoosten, perfect om ’s ochtends van de zon te genieten.
Tweede verdieping
De tweede verdieping biedt een royale vierde slaapkamer van 18 m², bereikbaar via de overloop. Vanuit deze slaapkamer heeft u toegang tot een ruim balkon van maar liefst 11 m², ideaal om in alle rust buiten te zitten.
Daarnaast is er een groot berghok met aansluiting voor de wasmachine en de CV-ketel, wat zorgt voor extra praktische opbergruimte.
Tuin
De woning beschikt over een ruime voortuin van circa 55 m², gelegen op het zuidoosten. Een heerlijke plek om met familie en vrienden te genieten van het buitenleven en de zon.
Bijzonderheden
– Keuken afkomstig uit 2021;
– 4 ruime slaapkamers;
– Vloerwarming beneden;
– 10 zonnepanelen gelegen op de woning;
– Zonneboiler op de woning;
– 2 airco’s aanwezig;
– CV-ketel afkomstig uit 2009;
– De binnenschuur kan worden omgebouwd tot een eventuele extra kamer of praktijkruimte;
– Wasmachine aansluiting aanwezig in aparte kamer op zolder;
– Woning is volledig geïsoleerd;
– Gelegen in geliefde wijk ”Batau Noord”.
– Voortuin gelegen op het zuidoosten. Verder nog een achtertuin en 2 balkons aanwezig;
Energielabel: A
Oplevering in overleg.
Interesse in dit huis? Schakel direct jouw eigen NVM-aankoopmakelaar in.
De NVM-aankoopmakelaar komt op voor jouw belang en bespaart tijd, geld en zorgen.
Adressen van collega NVM-aankoopmakelaars in Nieuwegein zijn te vinden op Funda.
Kenmerken
Status |
Beschikbaar |
Toegevoegd |
09-01-2026 |
Vraagprijs |
€ 590.000,- k.k. |
Appartement vve bijdrage |
€ 0,- |
Woonoppervlakte |
167 m2 |
Perceeloppervlakte |
185 m2 |
Externe bergruimte |
0 m2 |
Gebouwgebonden buitenruimte |
0 m2 |
Overige inpandige ruimte |
0 m2 |
Inhoud |
601 m3 |
Aantal kamers |
5 |
Aantal slaapkamers |
4 |
Bouwvorm |
Bestaande bouw |
Energieklasse |
A |
Soort(en) verwarming |
Cv Ketel, Vloerverwarming Gedeeltelijk |
CV ketel bouwjaar |
2009 |
CV ketel brandstof |
Gas |
CV ketel eigendom |
Eigendom |
Soort(en) warm water |
Cv Ketel |
Heb je vragen over deze woning?
Neem contact op met
Tijn Harlaar
Vestiging
Nieuwegein
Wil je ook door ons geholpen worden? Doe onze gratis huiswaarde check!
Je hebt de keuze uit een online waardebepaling of de nauwkeurige waardebepaling. Beide zijn gratis. Uiteraard is het altijd mogelijk om na de online waardebepaling alsnog een afspraak te maken voor een nauwkeurige waardebepaling. Ga je voor een accurate en complete waardebepaling of voor snelheid en gemak?
