Otterstraat 81
3513 CK, UTRECHT
69 m2 wonen
53 m2 perceel
4 kamers
€ 425.000,- k.k.
Kan ik dit huis betalen? Wat worden mijn maandlasten?Deel met je vrienden
Volledige omschrijving
Otterstraat 81 is gelegen in de populaire en sfeervolle wijk Pijlsweerd-Zuid, een geliefde woonomgeving op korte afstand van de Utrechtse binnenstad. Deze karakteristieke buurt kenmerkt zich door haar charmante, vooroorlogse bebouwing en een prettige, rustige woonsetting met voornamelijk bestemmingsverkeer.
De ligging is bijzonder gunstig: het historische centrum van Utrecht, het Centraal Station en diverse uitvalswegen zijn binnen enkele minuten bereikbaar. In de directe omgeving bevindt zich een ruim aanbod aan winkels, supermarkten en horecagelegenheden, met de levendige Amsterdamsestraatweg op loopafstand. Daarnaast liggen ook het Bethlehempark, kinderopvang, basisscholen en diverse onderwijsinstellingen (mbo en hbo) op korte loopafstand.
Indeling
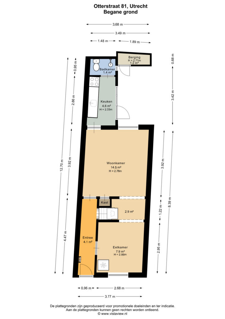
Begane grond: Via de entree betreed je de woning in een verrassend ruime hal van circa 4 meter lang, die toegang biedt tot de eetkamer, de woonkamer en de trapopgang naar de eerste verdieping.
De eetkamer (ca. 7 m²) is een prettige, lichte ruimte en biedt voldoende plaats voor een gezellige eettafel. Aangrenzend vind je de woonkamer (ca. 14 m²), waar je eenvoudig een comfortabele zithoek kunt creëren. De royale plafondhoogte van circa 2,80 meter zorgt in beide ruimtes voor een extra ruimtelijk gevoel. Tussen de eetkamer en de woonkamer bevindt zich de praktische aansluiting voor de wasmachine.
Aan de achterzijde van de woning bevinden zich de keuken en de badkamer. De badkamer is voorzien van douche en toilet. Vanuit de keuken is de achtertuin direct bereikbaar. Deze biedt voldoende ruimte voor het creëren van een gezellige zithoek, waar je in alle rust kunt genieten van het buitenleven. Tevens is er een aparte berging.
Eerste verdieping: Via de vaste trap in de hal bereik je de eerste verdieping. Deze verdieping geeft toegang tot de master bedroom aan de voorzijde, welke is voorzien van authentieke balken die zorgen voor een warme en sfeervolle uitstraling.
Aan de achterzijde bevindt zich een tweede (slaap)kamer van circa 12 m², momenteel ingericht als kantoor maar uitstekend geschikt als volwaardige slaapkamer. De kamer biedt een fraai, vrij uitzicht en bovendien de mogelijkheid tot het realiseren van een dakterras, zoals reeds bij meerdere woningen in de straat is gedaan.
Zolder: Via een losse trap is de zolder bereikbaar, een praktische bergruimte van circa 10 m². Er bestaan mogelijkheden om hier bijvoorbeeld een extra slaapkamer te realiseren.
Bijzonderheden:
– Bouwjaar: 1915;
– 69 m² Woonoppervlakte met praktische indeling;
– Er bestaat de mogelijkheid tot het realiseren van een dakopbouw, conform de situatie bij de buren, waarmee twee extra slaapkamers kunnen worden gecreëerd;
– Energielabel F;
– Volledig voorzien van dubbelglas;
– Gelegen in de populaire wijk Pijlsweerd-Zuid;
– Op korte afstand van de binnenstad en het Centraal Station;
– Lichte eetkamer en woonkamer;
– Twee (slaap)kamers op de eerste verdieping;
– Ruime bergvliering, hoogte tot de nok 2,54 m;
– Achtertuin met ruimte voor een gezellige zithoek;
– Rustige straat met voornamelijk bestemmingsverkeer;
– Parkeren in de straat middels een vergunning;
– Ouderdoms- en asbestclausule zullen in de koopakte worden opgenomen;
– Oplevering in overleg.
Interesse in dit woonhuis? Schakel direct jouw eigen NVM-aankoopmakelaar in.
Jouw NVM-aankoopmakelaar komt op voor jouw belang en bespaart je tijd, geld en zorgen.
Kenmerken
Status |
Verkocht onder voorbehoud |
Toegevoegd |
31-03-2026 |
Vraagprijs |
€ 425.000,- k.k. |
Appartement vve bijdrage |
€ 0,- |
Woonoppervlakte |
69 m2 |
Perceeloppervlakte |
53 m2 |
Externe bergruimte |
0 m2 |
Gebouwgebonden buitenruimte |
0 m2 |
Overige inpandige ruimte |
12 m2 |
Inhoud |
285 m3 |
Aantal kamers |
4 |
Aantal slaapkamers |
2 |
Bouwvorm |
Bestaande bouw |
Energieklasse |
F |
CV ketel type |
Bosch & Nefit+plus |
Soort(en) verwarming |
Cv Ketel |
CV ketel brandstof |
Gas |
CV ketel eigendom |
Eigendom |
Soort(en) warm water |
Cv Ketel, Geiser Eigendom |
Heb je vragen over deze woning?
Neem contact op met
Manon Roskott
Vestiging
Utrecht
Wil je ook door ons geholpen worden? Doe onze gratis huiswaarde check!
Je hebt de keuze uit een online waardebepaling of de nauwkeurige waardebepaling. Beide zijn gratis. Uiteraard is het altijd mogelijk om na de online waardebepaling alsnog een afspraak te maken voor een nauwkeurige waardebepaling. Ga je voor een accurate en complete waardebepaling of voor snelheid en gemak?
