Mgr. van de Weteringstraat 34
3581 EJ, UTRECHT
44 m2 wonen
perceel
2 kamers
€ 350.000,- k.k.
Kan ik dit huis betalen? Wat worden mijn maandlasten?Deel met je vrienden
Volledige omschrijving
Aan de Mgr. van de Weteringstraat ligt deze nette en goed ingedeelde benedenwoning. Door de hoekligging beschikt het appartement over extra ramen, wat zorgt voor een prettige lichtinval en een ruimtelijk gevoel. Het appartement grenst op de hoek aan de Appelstraat, een van de fijne en karakteristieke straatjes in de wijk. Een prettige locatie met een eigen sfeer.
De woning beschikt over een slaapkamer en een half open keuken die in verbinding staat met de woonkamer. De woonkamer is licht en praktisch ingericht en biedt een comfortabele leefruimte. De indeling is overzichtelijk en efficiënt, waardoor de beschikbare ruimte goed wordt benut.
Het appartement heeft geen eigen buitenruimte, maar voor de woning is voldoende ruimte om bij mooi weer gezellig op een bankje te zitten en met een kop koffie of goed glas wijn van het zonnetje te genieten.
Buiten Wittevrouwen staat bekend om een aangename mix van rustige woonstraten, buurtwinkels en horecagelegenheden. Daarnaast ligt de woning gunstig ten opzichte van omliggende wijken en voorzieningen. Het centrum van Utrecht, het Griftpark en de Singel zijn eenvoudig bereikbaar per fiets of te voet. Ook openbaar vervoer en uitvalswegen bevinden zich in de directe omgeving.
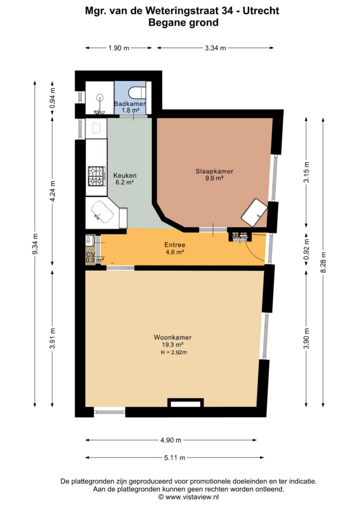
Indeling: Entree, hal met meterkast en een vaste kast waar de CV-ketel hangt. Aan de rechterkant van de hal bevinden zich de slaapkamer van circa 10 m² met wastafel en vaste kast en de halfopen keuken. De keuken beschikt over een gasfornuis en aansluiting voor de wasmachine. Achter de keuken vind je de badkamer met douche en toilet.
De woonkamer is ruim 19 m² en voorzien van een massief houten vloer. Dankzij de ramen in de voor- en zijgevel is deze ruimte heerlijk licht.
Bijzonderheden:
– Bouwjaar: omstreeks 1877;
– Energielabel: E;
– Woonoppervlakte: 44 m²
– Verwarming en warm water door middel van CV-ketel (Vaillant, 2013);
– Dak vernieuwd in 2021;
– Op het dak liggen 4 zonnepanelen (2023) voor eigen gebruik;
– Geheel voorzien van dubbelglas HR++, m.u.v. de ramen in de keuken, voordeur en de badkamer;
– Vloerbalk woonkamer aan de voorzijde vervangen;
– Asbest- en ouderdomsclausule zullen in de koopovereenkomst worden opgenomen;
– Parkeren met vergunning in de straat;
– Erfpacht eeuwigdurend afgekocht (Algemene Voorwaarden 1989);
– Actieve VvE, servicekosten bedragen € 60,- per maand;
– Oplevering in overleg.
This neat and well-designed ground floor apartment is located on Mgr. van de Weteringstraat. Due to its corner location, the apartment has extra windows, which provide pleasant light and a spacious feeling. The apartment is located on the corner of Appelstraat, one of the charming and characteristic streets in the neighborhood. A pleasant location with its own unique atmosphere.
The apartment has one bedroom and a semi-open kitchen that connects to the living room. The living room is bright and practically furnished, offering a comfortable living space. The layout is clear and efficient, making good use of the available space.
The apartment does not have its own outdoor space, but there is enough space in front of the house to sit on a bench in good weather and enjoy the sun with a cup of coffee or a glass of wine.
Buiten Wittevrouwen is known for its pleasant mix of quiet residential streets, local shops, and restaurants. In addition, the property is conveniently located in relation to surrounding neighborhoods and amenities. The center of Utrecht, the Griftpark, and the Singel are easily accessible by bike or on foot. Public transportation and major roads are also in the immediate vicinity.
Layout: Entrance hall with meter cupboard and a built-in cupboard housing the central heating boiler. To the right of the hall is the bedroom (approx. 10 m²) with washbasin and built-in cupboard, and the semi-open kitchen. The kitchen has a gas stove and connection for a washing machine. Behind the kitchen is the bathroom with shower and toilet.
The living room is over 19 m² and has solid wood flooring. Thanks to the windows in the front and side walls, this space is wonderfully light.
Details:
- Year of construction: around 1877;
- Energy label: E;
- Living area: 44 m²
- Heating and hot water via central heating boiler (Vaillant, 2013);
- Roof renewed in 2021;
- There are 4 solar panels (2023) on the roof for personal use;
- Fully equipped with double glazing HR++, except for the windows in the kitchen, front door, and bathroom;
- Floor beam in the living room at the front replaced;
- Asbestos and age clauses will be included in the purchase agreement;
- Parking with permit in the street;
- Perpetual leasehold purchased (General Terms and Conditions 1989);
- Active homeowners' association, service costs are €60 per month;
- Delivery in consultation.
Kenmerken
Status |
Beschikbaar |
Toegevoegd |
27-02-2026 |
Vraagprijs |
€ 350.000,- k.k. |
Appartement vve bijdrage |
€ 60,- |
Woonoppervlakte |
44 m2 |
Externe bergruimte |
0 m2 |
Gebouwgebonden buitenruimte |
0 m2 |
Overige inpandige ruimte |
0 m2 |
Inhoud |
188 m3 |
Aantal kamers |
2 |
Aantal slaapkamers |
1 |
Bouwvorm |
Bestaande bouw |
Energieklasse |
E |
CV ketel type |
Vaillant |
Soort(en) verwarming |
Cv Ketel |
CV ketel bouwjaar |
2013 |
CV ketel brandstof |
Gas |
CV ketel eigendom |
Eigendom |
Soort(en) warm water |
Cv Ketel |
Heb je vragen over deze woning?
Neem contact op met
Manon Roskott
Vestiging
Utrecht
Wil je ook door ons geholpen worden? Doe onze gratis huiswaarde check!
Je hebt de keuze uit een online waardebepaling of de nauwkeurige waardebepaling. Beide zijn gratis. Uiteraard is het altijd mogelijk om na de online waardebepaling alsnog een afspraak te maken voor een nauwkeurige waardebepaling. Ga je voor een accurate en complete waardebepaling of voor snelheid en gemak?
