Annastraat 3
3512 GP, UTRECHT
99 m2 wonen
44 m2 perceel
5 kamers
€ 595.000,- k.k.
Kan ik dit huis betalen? Wat worden mijn maandlasten?Deel met je vrienden
Volledige omschrijving
KARAKTERISTIEKE STADSWONING MET DAKTERRAS IN HARTJE UTRECHT
Wonen midden in de historische binnenstad, in alle rust?
Deze charmante 17e-eeuwse stadswoning aan de Annastraat biedt het beste van twee werelden: een autoluwe, bijna verborgen straat met een nostalgische uitstraling, terwijl de levendigheid van Utrecht zich letterlijk om de hoek bevindt. Terrassen, grachten, winkels en cultuur liggen op enkele stappen afstand, net als het Centraal Station.
Een zeldzame combinatie van karakter, rust en stedelijke dynamiek.
Sfeervol en comfortabel wonen
De woning ademt historie, met authentieke balken, een indrukwekkende plafondhoogte en een marmeren vloer die direct een warme, stijlvolle sfeer neerzet. De royale woonkeuken vormt het hart van het huis, een plek voor lange diners, goede gesprekken en ontspannen avonden.
Op de eerste verdieping bevindt zich een lichte woonkamer die rust en comfort biedt. Het zonnige dakterras is een absolute eyecatcher, met uitzicht op de Domtoren, een unieke plek voor een rustige ochtendkoffie of een glas wijn bij zonsondergang.
Dankzij de flexibele indeling met meerdere kamers is er ruimte voor slapen, werken of hobby’s. Ideaal voor wie midden in de stad wil wonen zonder concessies te doen aan ruimte en rust.
Ook ideaal voor gedeeld wonen
Met drie tot vier slaapkamers en meerdere leefruimtes is deze woning ook uitstekend geschikt voor woningdelers of studerenden. De indeling biedt een mooie balans tussen samen leven en privacy. De centrale ligging maakt het dagelijks leven eenvoudig: universiteit, werk, openbaar vervoer en het stadsleven liggen allemaal op loopafstand. Het dakterras fungeert als gezamenlijke buitenruimte, een plek om samen te ontspannen, met uitzicht over de stad.
Indeling in het kort
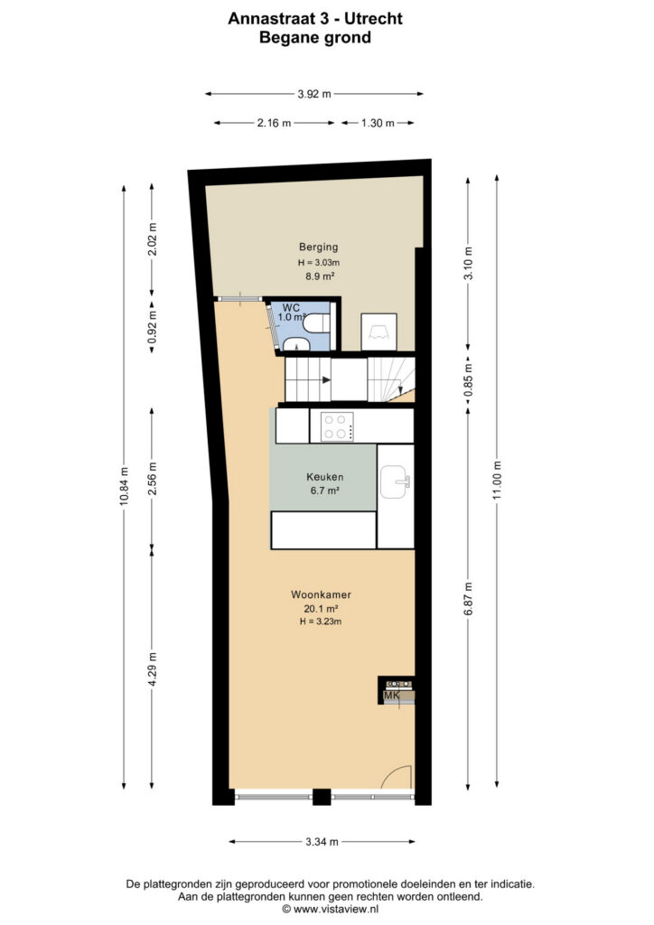
• Royale woonkeuken (ca. 20 m²) met hoge plafonds en authentieke details
• Ruime bijkeuken/berging (ca. 9 m²), geschikt voor fietsen en wasmachine
• Lichte woonkamer of slaapkamer (ca. 20 m²) op de eerste verdieping
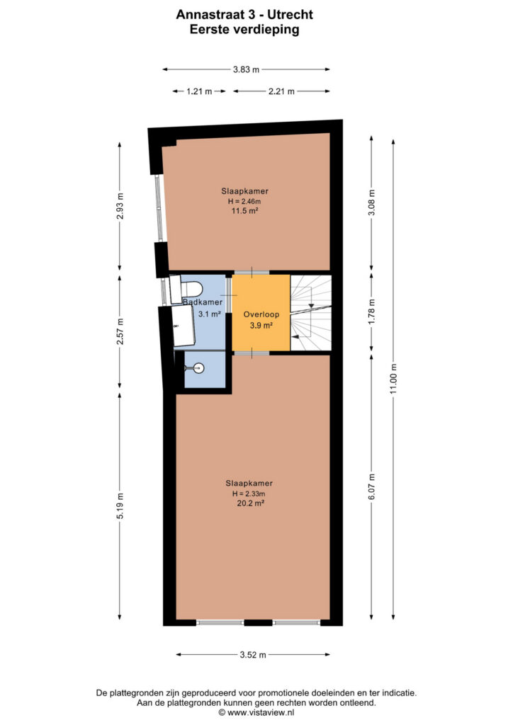
• 3 à 4 slaapkamers (ca. 20,2 – 11,5 – 8,4 – 6,3 m²)
• Badkamer en 2 toiletten
• Zonnig, beschut dakterras met uitzicht op de Domtoren
Bijzonderheden
• Woonoppervlakte: ca. 99 m²
• Gemeentelijk monument
• Gelegen in beschermd stadsgezicht
• Erfpacht eeuwigdurend afgekocht
• Unieke, rustige ligging midden in de binnenstad
Woningen met deze combinatie van karakter, locatie en flexibiliteit komen zelden beschikbaar. Een bijzonder thuis in het hart van Utrecht, geschikt voor zowel stijlvol samen wonen als gedeeld stadsleven.
CHARMING TOWNHOUSE WITH ROOFTOP TERRACE IN THE HEART OF UTRECHT
Living right in the historic city center, yet in complete tranquility?
This charming 17th-century townhouse on Annastraat offers the best of both worlds: a quiet, almost hidden street with a nostalgic atmosphere, while the vibrant life of Utrecht is just around the corner. Terraces, canals, shops, and cultural hotspots are all within a few steps, as is Central Station.
A rare combination of character, peace, and urban energy.
Atmospheric and comfortable living
The home breathes history, featuring authentic wooden beams, impressive ceiling heights, and a marble floor that immediately creates a warm and stylish ambiance. The spacious kitchen-diner forms the heart of the house, a perfect place for long dinners, great conversations, and relaxed evenings.
On the first floor, you’ll find a bright living room offering comfort and calm. The sunny rooftop terrace is a true highlight, with views of the Dom Tower, an exceptional spot for a quiet morning coffee or a glass of wine at sunset.
Thanks to the flexible layout with multiple rooms, there is plenty of space for sleeping, working, or hobbies. Ideal for those who want to live in the city center without compromising on space and tranquility.
Also ideal for shared living
With three to four bedrooms and multiple living areas, this property is also perfectly suited for house sharing or students. The layout offers a great balance between communal living and privacy. Its central location makes daily life easy: university, work, public transport, and city life are all within walking distance. The rooftop terrace serves as a shared outdoor space, a place to relax together while enjoying views over the city.
Layout at a glance
• Spacious kitchen-diner (approx. 20 m²) with high ceilings and authentic details
• Large utility/storage room (approx. 9 m²), suitable for bicycles and a washing machine
• Bright living room or bedroom (approx. 20 m²) on the first floor
• 3 to 4 bedrooms (approx. 20.2 – 11.5 – 8.4 – 6.3 m²)
• Bathroom and 2 separate toilets
• Sunny, sheltered rooftop terrace with views of the Dom Tower
Key features
• Living area: ca. 99 m²
• Listed municipal monument
• Located in a protected cityscape
• Perpetual ground lease fully paid off
• Unique, quiet location in the city center
Properties offering this combination of character, location, and flexibility rarely come onto the market. A truly special home in the heart of Utrecht, perfect for both stylish co-living and shared urban living.
Kenmerken
Status |
Onder bod |
Toegevoegd |
20-04-2026 |
Vraagprijs |
€ 595.000,- k.k. |
Appartement vve bijdrage |
€ 0,- |
Woonoppervlakte |
99 m2 |
Perceeloppervlakte |
44 m2 |
Externe bergruimte |
0 m2 |
Gebouwgebonden buitenruimte |
9 m2 |
Overige inpandige ruimte |
0 m2 |
Inhoud |
365 m3 |
Aantal kamers |
5 |
Aantal slaapkamers |
4 |
WOZ Waarde |
€ 626.000,- |
WOZ Waarde peildatum |
1 januari 2025 |
WOZ Waarde peildatum |
1 januari 2025 |
Bouwvorm |
Bestaande bouw |
Energieklasse |
G |
CV ketel type |
Nefit |
Soort(en) verwarming |
Cv Ketel |
CV ketel brandstof |
Gas |
CV ketel eigendom |
Eigendom |
Soort(en) warm water |
Cv Ketel |
Heb je vragen over deze woning?
Neem contact op met
Huib Eijlander
Vestiging
Utrecht
Wil je ook door ons geholpen worden? Doe onze gratis huiswaarde check!
Je hebt de keuze uit een online waardebepaling of de nauwkeurige waardebepaling. Beide zijn gratis. Uiteraard is het altijd mogelijk om na de online waardebepaling alsnog een afspraak te maken voor een nauwkeurige waardebepaling. Ga je voor een accurate en complete waardebepaling of voor snelheid en gemak?
