2de Poortstraat 5
4125 TB, HOEF EN HAAG
172 m2 wonen
237 m2 perceel
5 kamers
€ 725.000,- k.k.
Kan ik dit huis betalen? Wat worden mijn maandlasten?Deel met je vrienden
Volledige omschrijving
Hoekwoning met vrij uitzicht, een royaal woonoppervlak, moderne woonkeuken en een diepe achtertuin.
Deze moderne hoekwoning uit 2019 biedt een combinatie van ruimte, energiezuinigheid, hoogwaardige afwerking én een prachtige (autoluwe) ligging vrijwel direct aan de Meander. Dankzij het vrije uitzicht aan de voorzijde en de achtertuin van meer dan 100 m² voelt deze woning uitzonderlijk ruimtelijk en licht. Met ca. 172 m² woonoppervlakte, vier volwaardige slaapkamers (6 mogelijk), een stijlvolle woonkeuken en eigentijdse afwerking is dit een woning die volledig aansluit op de woonwensen van nu. De woning is volledig geïsoleerd, uitgerust met HR+++ glas, 10 zonnepanelen en vloerverwarming op de begane grond én eerste verdieping.
Hoef en Haag ligt centraal tussen Utrecht, Houten en Vianen. Dagelijkse voorzieningen zoals de dorpswinkel, kapper en PLUS-supermarkt bevinden zich op loopafstand. Daarnaast zijn er diverse speelplekken, veel groen en water in de wijk en ligt de Meander letterlijk voor de deur. Ook de recreatieplas Everstein en de uiterwaarden van de Lek zijn nabij. De ligging dicht bij de A2 en A27 zorgt voor uitstekende verbindingen richting de rest van de Randstad.
Indeling:
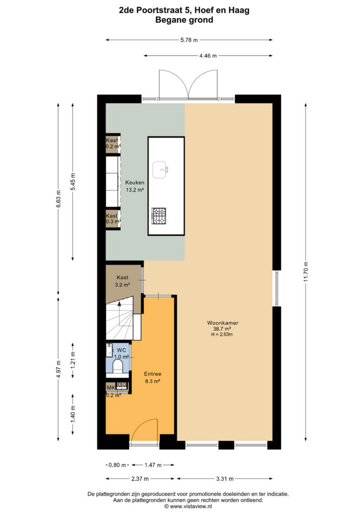
Begane grond:
De ruime hal van ca. 8 m² geeft toegang tot de woonkamer en woonkeuken. De leefruimte van ca. 52 m² strekt zich uit over ruim 11,7 meter en is dankzij de hoekligging en vele ramen heerlijk licht. Aan de voorzijde geniet je van een vrij uitzicht richting de Meander, een groot pluspunt in deze populaire wijk.
Aan de achterzijde ligt de moderne woonkeuken, die is ingericht als ideale plek voor koken en samenzijn. Het kook-/spoeleiland beschikt over een kookkraan, vaatwasser, vijfpitsgasstel, ruim werkblad en een bar met zitplekken. De wandopstelling biedt een grote koelkast, vriezer, oven en extra kastruimte, afgewerkt met een strakke ombouw. Het verlaagde plafond boven het eiland met geïntegreerde verlichting en afzuiging geeft de keuken een rustige, hoogwaardige uitstraling.
De gehele begane grond is voorzien van gladde wanden en plafonds en een moderne visgraat-PVC-vloer met vloerverwarming.
Eerste verdieping:
De overloop biedt toegang tot drie slaapkamers van ca. 20, 14 en 7 m². De hoofdslaapkamer aan de voorzijde heeft eveneens vrij uitzicht en biedt ruimte om — indien gewenst — twee kamers te creëren.
Daarnaast is er een separate toiletruimte aanwezig, een groot gemak voor het dagelijks gebruik.
De moderne badkamer van ca. 8 m² is uitgerust met ligbad, inloopdouche, dubbele wastafel met meubel, verlichte en verwarmde spiegel en een elektrische designradiator.
Tweede verdieping:
De ruime voorzolder van ca. 17 m² is ingericht met witgoedaansluitingen, CV-ketel (Intergas, 2019), mechanische ventilatie en de omvormer van de zonnepanelen. De vierde slaapkamer van ca. 26 m² is verrassend licht door de dakkapellen aan voor- en achterzijde en ook hier bestaat de mogelijkheid om de ruimte te verdelen in twee kamers.
Via de vlizotrap bereik je de ruime vliering, een uitstekende opslagruimte.
Tuin:
De achtertuin van ca. 108 m² is een van de absolute hoogtepunten van de woning. Dankzij de diepte van ca. 13 meter en breedte van ca. 8,5 meter is er altijd een fijne plek in de zon te vinden, ondanks de noordoostelijke ligging. De tuin is verzorgd aangelegd met meerdere terrassen, groenborders en grasstroken. Aan de achterzijde bevindt zich een houten overkapping (2019) met plek om ontspannen te zitten of te dineren.
Verder vind je achterin de tuin een berging van ca. 7 m² voor extra opbergruimte en een praktische achterom.
Bijzonderheden:
– Hoekwoning uit 2019 met ca. 172 m² woonoppervlak;
– Vrij uitzicht en ligging vrijwel direct aan de Meander;
– Moderne woonkeuken met kook-/spoeleiland;
– Vier ruime slaapkamers (mogelijkheid tot 6 kamers);
– Vloerverwarming op begane grond en eerste verdieping;
– Volledig geïsoleerd, HR+++ glas en 10 zonnepanelen;
– Houten kozijnen op de begane grond en eerste verdieping, kunststof kozijnen op de tweede verdieping;
– Buitenschilderwerk uitgevoerd in 2023 & gevels gereinigd in 2024;
– Diepe achtertuin met overkapping (2019), berging en achterom.
Aanvaarding: In overleg
Energielabel: A
Interesse in dit huis? Schakel direct je eigen NVM-aankoopmakelaar in.
Je NVM-aankoopmakelaar komt op voor jouw belang en bespaart je tijd, geld en zorgen.
Adressen van collega NVM-aankoopmakelaars in Hoef en Haag vind je op Funda.
Corner House with Unobstructed Views, Generous Living Space, Modern Open-Plan Kitchen, and Deep Rear Garden
This modern corner house, built in 2019, offers an ideal combination of space, energy efficiency, and high-quality finishes, topped off by a beautiful location almost directly on the Meander. Thanks to the unobstructed views at the front and a rear garden of over 100 m², this home feels exceptionally spacious and bright.
With approximately 172 m² of living space, four full-sized bedrooms (potential for six), a stylish open-plan kitchen, and contemporary finishes throughout, this is a home that perfectly matches modern living requirements. The property is fully insulated and equipped with HR++ glazing, 10 solar panels, and underfloor heating on both the ground floor and first floor.
Hoef en Haag is centrally located between Utrecht, Houten, and Vianen. Daily amenities such as the village shop, hairdresser, and PLUS supermarket are all within walking distance. The neighbourhood also offers several playgrounds, plenty of greenery and water features, and the Meander is literally at the end of the street. The Everstein recreational lake and the floodplains of the River Lek are also nearby. Its location close to the A2 and A27 motorways ensures excellent connections to the rest of the Randstad area.
Layout
Ground Floor
The spacious entrance hall of approximately 8 m² provides access to the living room and kitchen. The living area of approximately 52 m² extends over more than 11.7 metres and benefits from the corner position and numerous windows, making it wonderfully bright. At the front, you can enjoy unobstructed views towards the Meander, a major advantage in this popular neighbourhood.
At the rear of the house is the modern open-plan kitchen, designed as the ideal space for cooking and spending time together. The cooking / sink island is fitted with a Quooker tap, dishwasher, five-burner gas hob, generous worktop, and a breakfast bar with seating. The wall unit includes a large fridge, freezer, combi-oven, and additional cupboard space, all neatly finished with sleek built-in cabinetry. The lowered ceiling above the island, with integrated lighting and extractor system, gives the kitchen a calm and high-end appearance.
The entire ground floor features plastered walls and ceilings and a modern herringbone PVC floor with underfloor heating.
First Floor
The landing provides access to three bedrooms of approximately 20, 14, and 7 m². The master bedroom at the front also enjoys unobstructed views and offers the possibility — if desired — to be divided into two separate rooms.
There is also a separate toilet, a practical convenience for everyday use.
The modern bathroom of approximately 8 m² is fitted with a bathtub, walk-in shower, double washbasin with vanity unit, illuminated mirror, and an electric designer radiator.
Second Floor
The spacious landing of approximately 17 m² is fitted with connections for a washing machine and dryer, the central heating boiler (Intergas, 2019), mechanical ventilation system, and the inverter for the solar panels.
The fourth bedroom, measuring approximately 26 m², is surprisingly bright thanks to the dormer windows at both the front and rear. Here too, there is the option to divide the space into two separate rooms.
A loft ladder provides access to the spacious attic storage area, offering excellent additional storage space.
Garden
The rear garden of approximately 108 m² is one of the absolute highlights of this home. Thanks to its depth of over 12.8 metres and width of approximately 8.5 metres, there is always a pleasant sunny spot to enjoy, despite its north-east facing position.
The garden has been neatly landscaped with multiple terraces, green borders, and lawn areas. At the rear, there is a wooden canopy / covered seating area (2019) — perfect for relaxing or outdoor dining.
Also located at the back of the garden is a storage shed of approximately 7 m², as well as a convenient rear access path.
Key Features
Corner house built in 2019 with approximately 172 m² of living space
Unobstructed views and located almost directly on the Meander
Modern open-plan kitchen with cooking / sink island
Four spacious bedrooms (potential for six rooms)
Underfloor heating on the ground and first floors
Fully insulated, HR++ glazing, and 10 solar panels
Timber window frames on the ground and first floors, uPVC frames on the second floor
Exterior painting completed in 2023 & façades cleaned in 2024
Deep rear garden with covered seating area (2019), storage shed, and rear access
Completion / Transfer: By mutual agreement
Energy Label: A
Interested in this property?
We recommend engaging your own NVM purchasing agent directly.
An NVM purchasing agent will represent your interests and can save you time, money, and unnecessary stress.
You can find the contact details of fellow NVM purchasing agents in Hoef en Haag on Funda.
Kenmerken
Status |
Beschikbaar |
Toegevoegd |
08-04-2026 |
Vraagprijs |
€ 725.000,- k.k. |
Appartement vve bijdrage |
€ 0,- |
Woonoppervlakte |
172 m2 |
Perceeloppervlakte |
237 m2 |
Externe bergruimte |
7 m2 |
Gebouwgebonden buitenruimte |
0 m2 |
Overige inpandige ruimte |
5 m2 |
Inhoud |
637 m3 |
Aantal kamers |
5 |
Aantal slaapkamers |
4 |
Bouwvorm |
Bestaande bouw |
Energieklasse |
A |
CV ketel type |
Intergas |
Soort(en) verwarming |
Cv Ketel, Vloerverwarming Gedeeltelijk |
CV ketel bouwjaar |
2019 |
CV ketel brandstof |
Gas |
CV ketel eigendom |
Eigendom |
Soort(en) warm water |
Cv Ketel |
Heb je vragen over deze woning?
Neem contact op met
Mirjam Groen
Vestiging
Vianen
Wil je ook door ons geholpen worden? Doe onze gratis huiswaarde check!
Je hebt de keuze uit een online waardebepaling of de nauwkeurige waardebepaling. Beide zijn gratis. Uiteraard is het altijd mogelijk om na de online waardebepaling alsnog een afspraak te maken voor een nauwkeurige waardebepaling. Ga je voor een accurate en complete waardebepaling of voor snelheid en gemak?
