Levensloopwoning
104 m2 t/m 109 m2 wonen
190 m2 t/m 190 m2 perceel
€ 685.000,- tot € 715.000,- Kan ik dit huis betalen? Wat worden mijn maandlasten?
Deel met je vrienden
Volledige omschrijving
Wakker worden, de deur openslaan en zo je tuin in stappen, dat is pas ontspannen wonen. In deze 17 levensloopwoningen in Hofpark geniet je van alle comfort op de begane grond, met extra ruimte boven voor wat jij maar wilt. De woning ligt op een rustige plek in de wijk, met een tuin op het oosten waar je ’s ochtends meteen de zon meepakt. Alles is gelijkvloers, slim ingedeeld en verrassend ruim: zo’n 104 tot 109 m2 woonoppervlakte, een fijne slaapkamer met badkamer ensuite, moderne keuken, een eigen oprit voor 2 auto’s en een aangebouwde berging. Wandelen doe je in het buurtpark en alle voorzieningen vind je in het Oude Dorp. Klinkt goed, hè?
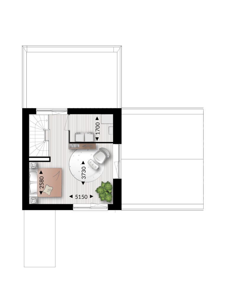
Alles gelijkvloers en compleet
Wat een leuke en stoere woningen zijn dit. Via de entreehal met separaat toilet bereik je niet alleen de woonruimte, maar ook de slaapkamer aan de tuinzijde. Heerlijk rustig gelegen, met een loopdeur naar buiten en een directe verbinding met de badkamer. Stel je voor, vanuit je bed loop je zo de tuin of direct de badkamer in, die compleet is ingericht met een inloopdouche, toilet en wastafel. Aan de achterzijde is plek voor een gezellige en ruime zithoek met een openslaande deur naar de tuin, waar je heerlijk buiten zit. De woonkeuken aan de voorzijde is inbegrepen, dus daar hoef je niets meer aan te doen. Een fijne plek om te koken, of gewoon te genieten van een kop koffie. En dan heb je nog een berging waar je je fiets stalt na een heerlijk fietstochtje. Aan alles is gedacht!
Extra ruimte boven voor jouw woonwensen
Boven is nog meer ruimte voor al jouw woonwensen. De trap naar boven bevindt zich in de woonkamer en brengt je naar een open zolder. Hier is plek voor de wasmachine, droger en technische installaties. Ook blijft er ruimte over voor een bureau, logeerbed of hobbyhoek. Precies wat jij nodig hebt. De woning is helemaal klaar voor morgen: gasloos, energiezuinig met energielabel A+++ en voorzien van zonnepanelen, vloerverwarming en een luchtwarmtepomp. Comfortabel in elk seizoen, duurzaam in gebruik en heerlijk licht en ruim. Hier hoef je nooit meer weg.
Kenmerken
Type |
Woonhuis |
Aantal bouwnummers |
17 |
Inhoud |
375 m3 - 393 m3 |
Woonoppervlakte |
104 m2 - 109 m2 |
Perceeloppervlakte |
190 m2 - 190 m2 |
Koop aanneemsom |
€ 685.000 - € 715.000,- |
Er zijn geen beschikbare nummers gevonden binnen dit type.
Heb je vragen over dit project?
Neem contact op met
Vestiging
Nieuwegein
Meer informatie over dit project of toekomstig nieuwbouw aanbod?
Onze nieuwbouw kanjers helpen je graag! Vertellen je meer over dit project én kunnen je informeren over vergelijkbare (toekomstige) projecten.
