Deel met je vrienden
Volledige omschrijving
Hoe mooi kan iemand wonen? De Gaarde is een wijk die ruim is opgezet en omgeven door groen en gelegen nabij het fraaie Imkerspark. Een fantastisch appartement van 73 m², helemaal van deze tijd, gasloos voorzien van een warmtepomp en geheel met vloerverwarming. Het appartement ligt in een kleinschalig gebouw aan de rand van de wijk en in het groen met een binnenterrein met de eigen parkeerplaatsen en een berging op de begane grond. Het heeft een gunstige ligging waardoor je snel op uitvalswegen als de A12 en A27 zit.
Indeling:
Op de begane grond komen we binnen in een centrale hal, afgesloten en beveiligd met een videofoon. Hier neem je de trap naar de tweede verdieping.
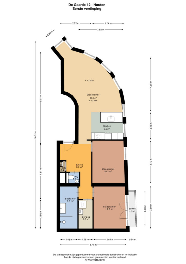
Het valt gelijk op dat er sprake is van praktische hal met een garderoberuimte en de meterkast. Daarnaast vinden we de technische ruimte met de opstelling onder andere de warmtepomp.
Als we rechtsaf lopen komen we in de living terecht. Een leuke speelse woonkamer met meerdere ramen op een rij zodat je vanuit verschillende hoeken het uitzicht kunt bekijken en waardoor het fantastisch licht in de kamer is. De afwerking is modern met een visgraat pvc vloer en glad afgewerkte wanden en plafond. De keuken is met eiland en wandopstelling geplaatst, uitgevoerd in moderne lichte kleurstelling, voorzien van inbouwapparatuur zoals een inductiekookplaat, quooker, combimagnetron, koel-/vriescombinatie en een vaatwasser.
Het knusse balkon is een fijne plek waar je lang en vaak buiten kan zitten, keurig afgewerkt met ook vanuit zitpositie goed uitzicht.
Via de hal komen we bij de ouderslaapkamer en de 2e slaap-/werkkamer. De badkamer is luxe te noemen met een fraaie inloopdouche een wastafelmeubel designradiator en een toilet.
De servicekosten bedragen € 100,- per maand.
Bijzonderheden:
– Per 1 maart 2026 beschikbaar;
– Minimaal bruto inkomen dient 4x de kale maand huurprijs te zijn;
– Woningdelen is NIET toegestaan;
– In de woning is roken niet toegestaan;
– Huisdieren niet toegestaan;
– 2 maanden borg vooruit te betalen;
– Voorbehoud gunning verhuurder
Kenmerken
Status |
Beschikbaar |
Toegevoegd |
16-02-2026 |
Appartement vve bijdrage |
€ 0,- |
Huurprijs |
€ 1.800,- p/m |
Servicekosten p/mnd |
€ 100,- |
Woonoppervlakte |
73 m2 |
Externe bergruimte |
5 m2 |
Gebouwgebonden buitenruimte |
2 m2 |
Overige inpandige ruimte |
0 m2 |
Inhoud |
234 m3 |
Aantal kamers |
3 |
Aantal slaapkamers |
2 |
Bouwvorm |
Bestaande bouw |
Energieklasse |
A++ |
Soort(en) verwarming |
Warmtepomp, Warmte Terugwininstallatie |
Soort(en) warm water |
Elektrische Boiler Eigendom |
Heb je vragen over deze woning?
Neem contact op met
Anne Marie van Bentum
Vestiging
Houten
Wil je ook door ons geholpen worden? Doe onze gratis huiswaarde check!
Je hebt de keuze uit een online waardebepaling of de nauwkeurige waardebepaling. Beide zijn gratis. Uiteraard is het altijd mogelijk om na de online waardebepaling alsnog een afspraak te maken voor een nauwkeurige waardebepaling. Ga je voor een accurate en complete waardebepaling of voor snelheid en gemak?
