Nieuwegein – 3-kamerappartementen 15
67 m2 wonen
perceel
3 kamers
Deze woning is verkocht
Deel met je vrienden
Volledige omschrijving
Op één van de meest gewilde plekjes van Nieuwegein, aan de Herenstraat in Jutphaas, vind je dit prachtige 3-kamer appartement, gelegen op de tweede verdieping. Dit is de ideale plek voor rust en comfort, maar toch dichtbij de stad Utrecht willen wonen.
Het appartement maakt onderdeel uit van nieuwbouwproject De Roskam te Nieuwegein. Gelegen langs het schilderachtige Merwedekanaal in de wijk Jutphaas, biedt de Herenstraat een serene omgeving met een grote steiger voor de deur. De aangrenzende Armensteeg voegt extra charme toe aan deze bijzondere locatie. Het appartement ligt gunstig ten opzichte van de uitvalswegen naar de belangrijke snelwegen A2, A12 en A27, waardoor je eenvoudig naar je bestemming kunt reizen. Op slechts 500 meter afstand ligt een bushalte met een rechtstreekse verbinding naar Utrecht Centraal, waardoor je binnen 18 minuten in het bruisende stadscentrum bent. Daarnaast ligt de tramhalte naar IJsselstein en Utrecht in het centrum van City Plaza.
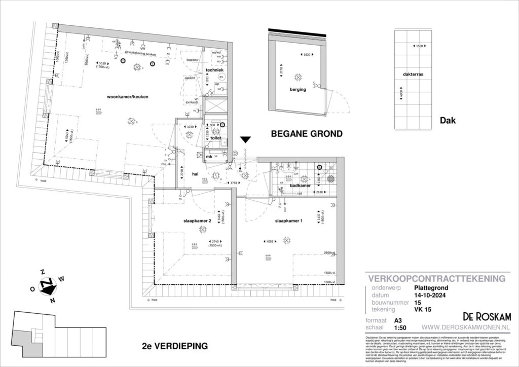
Ontdek dit prachtige appartement op de tweede verdieping met een woonoppervlakte van 67 vierkante meter. Het gezamenlijk dakterras biedt gegarandeerd de hele dag zon en wordt gedeeld met de 2 andere buren van de verdieping. De ruimte is slim ingedeeld om optimaal comfort en functionaliteit te bieden. Dit moderne appartement is ideaal voor starters of senioren. Bovendien wordt het duurzaam en energiezuinig gebouwd, waardoor je bijdraagt aan een beter milieu en bespaart op energiekosten. Grijp nu je kans om van deze unieke woning jouw nieuwe thuis te maken!
Dit 3-kamer appartement ligt op de tweede verdieping. Middels je eigen entree bereik je direct in de hal van jouw appartement. Via de ruime hal heb je toegang tot alle vertrekken van het appartement, waaronder een royale woonkamer met open keuken. De beide slaapkamers zijn goed van formaat en bieden veel lichtinval door de dakkapellen. De keuken en badkamer zijn geheel naar eigen wens te maken, er is een basis sanitair en tegelwerkpakket voor toilet en badkamer inbegrepen in de koopsom. Tot slot is er een praktische wasruimte met de technische installaties. Genoeg ruimte in het appartement!
BIJZONDERHEDEN
• Gelegen op de tweede verdieping
• Woonoppervlakte ca. 67 m2
• Gezamenlijk dakterras met de hele dag zon
• Privé berging op de begane grond
• De keuken is geheel naar eigen wens samen te stellen
• 2 ruime slaapkamers met dakkapellen
• Badkamer met wastafel en inloopdouche, inclusief tegelwerk
• Het gehele appartement is voorzien van vloerverwarming
• Voorzien van een warmtepomp (gunstig voor de maandlasten!)
• Voorlopig energielabel A++ (gasloos wonen)
Wil je meer weten over dit appartement of heb je vragen? Neem dan snel contact op met het verkoopteam voor meer informatie of neem een kijkje op de projectwebsite (deroskamwonen.nl). We plannen graag een gesprek met je in om de mogelijkheden te bespreken!
Kenmerken
Status |
Verkocht |
Koopsom |
€ 410.000,- |
Woonoppervlakte |
67 m2 |
Externe bergruimte |
5 m2 |
Gebouwgebonden buitenruimte |
6 m2 |
Overige inpandige ruimte |
0 m2 |
Inhoud |
201 m3 |
Aantal kamers |
3 |
Aantal slaapkamers |
2 |
Bouwvorm |
Nieuwbouw |
Energieklasse |
A++ |
Soort(en) verwarming |
Vloerverwarming Geheel, Warmtepomp |
Soort(en) warm water |
Elektrische Boiler Eigendom |
Heb je vragen over deze woning?
Neem contact op met
Marloes Eegdeman
Vestiging
Nieuwegein
Wil je ook door ons geholpen worden? Doe onze gratis huiswaarde check!
Je hebt de keuze uit een online waardebepaling of de nauwkeurige waardebepaling. Beide zijn gratis. Uiteraard is het altijd mogelijk om na de online waardebepaling alsnog een afspraak te maken voor een nauwkeurige waardebepaling. Ga je voor een accurate en complete waardebepaling of voor snelheid en gemak?
