Houten – De Kiem van Houten | Fase 2C fase 2 50
150 m2 wonen
perceel
5 kamers
Deze woning is verkocht
Deel met je vrienden
Volledige omschrijving
In verkoop!
Het is zover! De Kiem van Houten | Fase 2C is in verkoop! Je interesse kenbaar maken en digitaal inschrijven is mogelijk middels jouw persoonlijke account, welke is aan te maken op de projectwebsite (dekiemvanhouten.nl). De eerste inschrijftermijn is reeds gesloten maar je kan alsnog inschrijven op de woningen als (reserve)kandidaat.
—
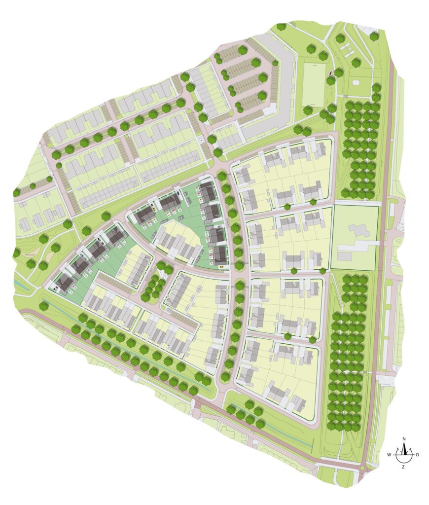
De laatste fase van De Kiem van Houten ontkiemt zich…
In de Kiem van Houten 2C fase 2 komen in totaal 24 woningen 12 twee-onder-één-kapwoningen en 12 drie-onder-één-kapwoningen. Voor ieder wat wils! De woningen in De Kiem van Houten hebben een fantastische locatie vlakbij de Oosterlaakplas, de Rietplas en alle dagelijkse voorzieningen binnen handbereik.
Op een paar minuten fietsen van De Kiem van Houten ligt Castellum; Houtens jongste winkelcentrum met supermarkten en een diversiteit aan winkels. Wie met het openbaar vervoer reist, valt met zijn neus in de boter. Castellum heeft namelijk – net als winkelcentrum Het Rond – een NS-station én een groot fietstransferium. In Houten hoef je je niet te vervelen; er is veel te bewegen en te beleven. Bewegen begint eigenlijk al bij de voordeur, want Sportparcours De Vijfwal loopt vlak langs De Kiem van Houten. Op steenworp afstand kan je volop genieten van waterplezier in, aan en op de Rietplas en de Oosterlaakplas. Het scala aan sport- en vrijetijdsfaciliteiten is bijzonder breed. En het blijft qua sport niet bij voetbal, tennis en hockey alleen; er is nog veel meer keuze op sportgebied. Voor theater- en bioscoopbezoek ben je aan het goede adres in Aan de Slinger.
In Houten is er voor iedereen volop keuze en voor ieder wat wils. Ook voor de kinderen, die vlak bij huis naar hartenlust kunnen buitenspelen. Zo zijn er diverse speelplekken dichtbij. Iets verderop, in Speelbos Nieuw Wulven, is het heerlijk toeven voor de hele familie. Wil je naar ‘de grote stad’? Dan is het gezellige Utrecht vlakbij om te shoppen, een hapje te eten, uit te gaan en cultuur op te snuiven. In Houten ligt alles op steenworp afstand. Moet je in Houten zijn, dan neem je al gauw de fiets. Ga je het dorp uit, dan bereik je via de Rondweg moeiteloos alle windstreken via de snelwegen A2 – A27 en A12. Reis je liever met het openbaar vervoer? In Houten stap je eenvoudig op de trein of bus. Daarna is het weer heerlijk thuiskomen.
Kenmerken
Status |
Verkocht |
Koopsom |
€ 880.000,- |
Woonoppervlakte |
150 m2 |
Externe bergruimte |
0 m2 |
Gebouwgebonden buitenruimte |
0 m2 |
Overige inpandige ruimte |
0 m2 |
Inhoud |
660 m3 |
Aantal kamers |
5 |
Aantal slaapkamers |
3 |
Bouwvorm |
Nieuwbouw |
Soort(en) verwarming |
Vloerverwarming Gedeeltelijk, Warmtepomp |
Soort(en) warm water |
Elektrische Boiler Eigendom |
Wil je ook door ons geholpen worden? Doe onze gratis huiswaarde check!
Je hebt de keuze uit een online waardebepaling of de nauwkeurige waardebepaling. Beide zijn gratis. Uiteraard is het altijd mogelijk om na de online waardebepaling alsnog een afspraak te maken voor een nauwkeurige waardebepaling. Ga je voor een accurate en complete waardebepaling of voor snelheid en gemak?
