Hoef En Haag – Hoef en Haag | Het Dorpshart fase 4H 44
84 m2 wonen
perceel
3 kamers
Deze woning is verkocht
Deel met je vrienden
Volledige omschrijving
OPEN HUIS | ELKE 1E ZATERDAG VAN DE MAAND 10:00 – 12:00 UUR IN ”DE KEUKEN VAN HOEF EN HAAG”, Lekstraat 38
Wil jij jouw vragen graag persoonlijk stellen? Elke eerste zaterdag van de maand is er iemand van het verkoopteam in de woonwinkel aanwezig om jou te helpen met de zoektocht naar jouw droomwoning. De lekkerste koffie uit “De Keuken van Hoef en Haag” staat voor je klaar tussen 10:00 en 12:00 uur aan de Lekstraat 38 in Hoef en Haag. Tot snel!
Je interesse kenbaar maken en digitaal inschrijven op de woningen is mogelijk middels jouw persoonlijke account, welke is aan te maken op de projectwebsite (www.hoefenhaag.nl). Hier vind je ook alle verkoopdocumentatie, plattegronden per bouwnummer en de actuele beschikbaarheid. Of neem bij interesse contact op met één van de projectmakelaars!
—
8 bovenwoningen is deze fase van Het Dorpshart rijk, ook dit woningtype komt zelden voor in Hoef en Haag en in de typische Oud-Hollandsche stijl komt deze knusse woning goed tot zijn recht. Op de eerste en tweede verdieping van dit blok vind je dan ook alles wat je nodig hebt om je wooncarrière te starten in Hoef en Haag.
Op straatniveau stap je de gezamenlijke trapopgang in naar boven naar jouw eigen woning. Vanuit de overloop betreed je je woning. Via de entree met apart toilet stap je je woonkamer met keuken binnen. Aan zowel de voorzijde als aan de achterzijde stroomt het daglicht naar binnen en via de schuifpui heb je toegang tot je eigen terras waar je heerlijk kunt genieten van de zon met een kop koffie of goed glas wijn.
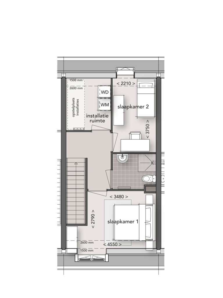
Een verdieping hoger zijn er twee slaapkamers. In de badkamer is een wastafel, douche en toilet te vinden, maar is ook naar eigen wens in te richten. De installatieruimte is groot genoeg om hier ook je wasmachine en droger kwijt te kunnen. Een compacte woning met alles er op en er aan!
Kenmerken
Status |
Verkocht |
Koopsom |
€ 355.000,- |
Woonoppervlakte |
84 m2 |
Externe bergruimte |
5 m2 |
Gebouwgebonden buitenruimte |
0 m2 |
Overige inpandige ruimte |
0 m2 |
Inhoud |
365 m3 |
Aantal kamers |
3 |
Aantal slaapkamers |
2 |
Bouwvorm |
Nieuwbouw |
Energieklasse |
A+++ |
Soort(en) verwarming |
Vloerverwarming Geheel, Warmtepomp, Warmte Terugwininstallatie |
Soort(en) warm water |
Elektrische Boiler Eigendom |
Heb je vragen over deze woning?
Neem contact op met
Mark van Woudenberg
Vestiging
Nieuwegein
Wil je ook door ons geholpen worden? Doe onze gratis huiswaarde check!
Je hebt de keuze uit een online waardebepaling of de nauwkeurige waardebepaling. Beide zijn gratis. Uiteraard is het altijd mogelijk om na de online waardebepaling alsnog een afspraak te maken voor een nauwkeurige waardebepaling. Ga je voor een accurate en complete waardebepaling of voor snelheid en gemak?
