Nijensteinseweg 1a
4124 AT, Hagestein
1.430 m2 bedrijfshal
2.346 m2 perceel
Prijs op aanvraag
Deel met je vrienden
Volledige omschrijving
Te huur
Het betreft drie geschakelde bedrijfshallen met diverse ruimtes. Het object is gelegen aan de rand van het centraal gelegen dorp Hagestein met op loopafstand een recreatieplas en de rivier de Lek. De bushalte ligt direct naast het object. Op enkele autominuten zijn Vianen en diverse uitvalswegen (A27, A2) gelegen.
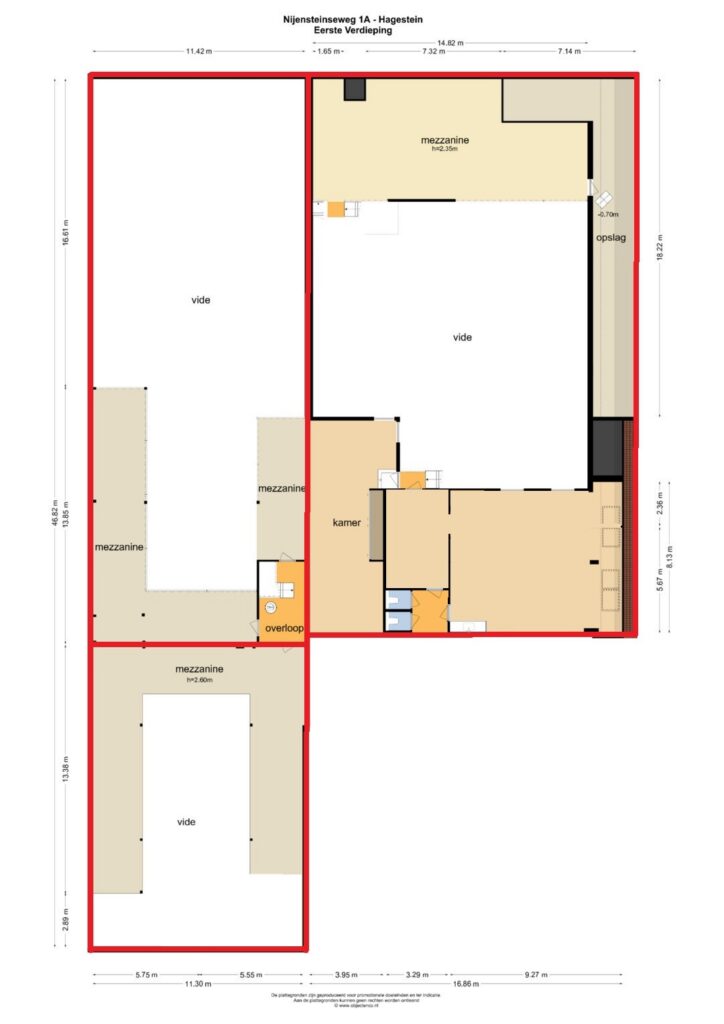
Vloeroppervlak:
Het totale oppervlak van de betreffende ruimtes is ca. 1.430 m² verhuurbaar vloeroppervlak, als volgt verdeeld:
Hal A:
– begane grond met toiletten circa 314 m² verhuurbaar vloeroppervlak;
– 1e verdieping kantoor circa 150 m² verhuurbaar vloeroppervlak;
– 1e verdieping entresol en opslag circa 140 m² verhuurbaar vloeroppervlak.
Hal B:
– begane grond met keuken en toilet circa 333 m² verhuurbaar vloeroppervlak;
– begane grond showroom/kantoorruimte circa 118 m² verhuurbaar vloeroppervlak;
– 1e verdieping entresol circa 79 m² verhuurbaar vloeroppervlak.
Hal C:
– begane grond met dubbel toilet circa 185 m² verhuurbaar vloeroppervlak;
– 1e verdieping entresol circa 84 m² verhuurbaar vloeroppervlak.
De hallen zijn als geheel te huur, maar het is ook mogelijk om een hal los te huren.
Parkeren:
Er is voldoende parkeergelegenheid op eigen terrein.
Huurprijs:
Hal A: ⬠45.950,= per jaar te vermeerderen met de wettelijk verschuldigde omzetbelasting;
Hal B: ⬠43.950,= per jaar te vermeerderen met de wettelijk verschuldigde omzetbelasting;
Hal C: ⬠17.950,= per jaar te vermeerderen met de wettelijk verschuldigde omzetbelasting.
Voorzieningen:
De bedrijfshallen worden opgeleverd in de huidige staat, inclusief:
Algemeen:
– meterkast met aansluitingen voor gas, water, elektra en internet;
– elektrisch schuifhek;
– 120 zonnepanelen, indicatieve capaciteit 32.000 kWh per jaar;
– zonwering;
– alarm en cameraās;
– ruime kelder;
– brandblus- en brandmeldvoorzieningen;
– CV installatie met radiatoren.
Bedrijfsruimte:
– krachtstroom;
– persluchtleidingen;
– betonvloer;
– diverse entresol vloeren;
– 3 lichtstraten;
– solartubes ten behoeve van extra daglichttoetreding;
– 3 elektrische overheaddeuren;
– heaters met ventilators;
– kantine met bar en keuken;
– losse bar en pantry;
– 2 toiletgroepen, waarvan 1 uitgebreide;
– verlichting;
– enkele ruimtes op de verdieping.
Energielabel:
C.
Bestemming en gebruik:
Gemengd – bedrijven tot en met categorie B1.
Een bestemming kan aan verandering onderhevig zijn. Raadpleeg derhalve voor de actuele gegevens de website omgevingswet.overheid.nl of neem contact op met ons kantoor.
Omzetbelasting:
Uitgangspunt is BTW belaste verhuur. Derhalve dient bovengenoemd bedrag te worden vermeerderd met het van toepassing zijnde BTW percentage. Indien huurder niet aan het 90 % criterium voldoet, zal er van rechtswege sprake zijn
van omzetbelasting vrijgestelde verhuur. Alsdan wordt de overeengekomen kale huurprijs, exclusief omzetbelasting, zodanig verhoogd dat het voor verhuurder ontstane nadeel volledig wordt gecompenseerd.
Servicekosten:
Een nog nader overeen te komen bedrag per m² per jaar te vermeerderen met de wettelijk verschuldigde omzetbelasting op voorschotbasis.
Betalingen:
Huur, servicekosten, BTW per kwartaal vooruit.
Huurtermijn:
5 jaar met een verlengingsperiode van 5 jaar.
Opzegtermijn:
Uiterlijk 12 maanden voor het aflopen van een huurtermijn.
Huurprijsaanpassing:
Jaarlijks, voor het eerst ƩƩn jaar na huuringangsdatum, op basis van het consumptieprijsindexcijfer voor alle huishoudens (CPI, als vastgesteld door het CBS, met als basisjaar 2015).
Zekerheidsstelling:
Een bankgarantie of waarborgsom ter grootte van minimaal drie maanden huur te vermeerderen met servicekosten en BTW.
Overige condities:
Huurovereenkomst op basis van het standaard model van de Raad voor Onroerende Zaken (ROZ);
Aanvaarding:
In overleg.
Kenmerken
Status |
Beschikbaar |
Huur |
€ 107.850,- p.j. |
Toegevoegd |
01-01-1970 |
Perceeloppervlakte |
2.346 m2 |
Bedrijfsruimte |
1.430 m2 |
Aanmeldingsreden |
In verhuur genomen |
