Korte Schaft 9
3991 AT, Houten
129 m2 kantoor
2.930 m2 bedrijfshal
4.016 m2 perceel
Prijs op aanvraag
Deel met je vrienden
Volledige omschrijving
Te koop
Functioneel bedrijfsgebouw met kantoorruimte, gelegen op een riant perceel van 4.016 m² met afsluitbaar buitenterrein. Naast het onderbrengen van een bedrijf in het bestaande gebouw kan het tevens een interessante locatie voor herontwikkeling zijn.
Vloeroppervlak:
Het betreffende oppervlak is totaal ca. 3.059 m² verhuurbaar vloeroppervlak, als volgt verdeeld:
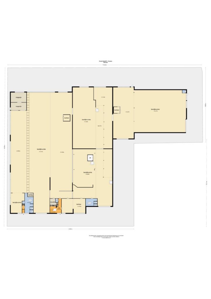
ca. 2.173 m² bedrijfsruimte/overig gelegen op de begane grond;
ca. 50 m² kantoorruimte gelegen op de begane grond;
ca. 138 m² entresolvloer;
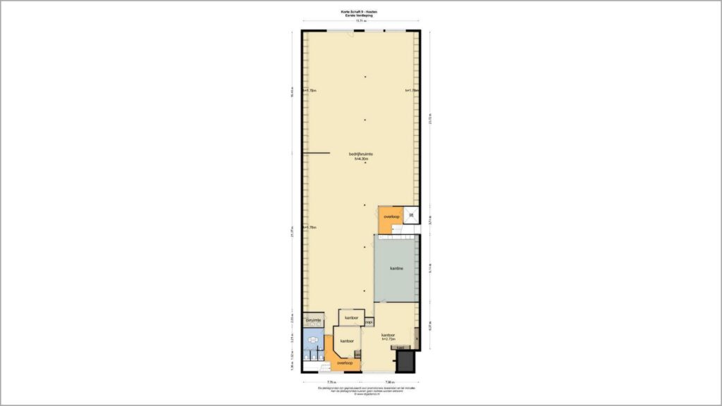
ca. 79 m² kantoorruimte gelegen op de verdieping.
ca. 619 m² bedrijfsruimte/overig gelegen op de verdieping.
Parkeren:
Op eigen terrein is zeer ruime parkeergelegenheid aanwezig mede door het buitenterrein aan de achterzijde van het object.
Kadastrale gegevens:
Gemeente Houten
Sectie A
Nummers 3717, 6582, 6584, 10048 en 10051
Perceelgroottes 1.786 m², 1.055 m², 758 m², 263 m² en 154 m²
Koopsom:
€ 1.975.000,= kosten koper, vrij van BTW.
Voorzieningen:
Het bedrijfsgebouw wordt opgeleverd in de huidige gebruikte staat, inclusief:
– aansluitingen voor gas, water, elektra, krachstroom afgezekerd op 315 Ampère (kan niet gegarandeerd worden);
– alarminstallatie;
– diverse cv-ketels met radiatoren;
– gasheaters;
– airconditioning met luchtverversing;
– uitgebreide keuken met apparatuur;
– goederenlift 2.000 kg;
– brandblusvoorzieningen;
– mechanische afzuiging;
– sanitaire voorzieningen: toiletten, wasruimte etc.;
– verlichting, grotendeels tl-verlichting, deels ledverlichting;
– drie elektrische overheaddeuren;
– vloerbelasting bedrijfsruimte verdieping vermoedelijk 1.000 kg/m2;
– vetvangput;
– afsluitbaar buitenterrein;
– diverse wand-, vloer- en plafondafwerkingen.
Ligging/bereikbaarheid:
De ligging van bedrijventerrein ‘De Schaft’ is centraal in Houten gesitueerd te midden van woonwijken. Op korte loopafstand (in het Oude Dorp van Houten en Castellum) kan men diverse horecagelegenheden vinden maar ook tal van voorzieningen zoals supermarkten, drogisterijen, een bakker, slager, een delicatessenzaak en een HEMA.
De bereikbaarheid met de auto is uitstekend te noemen. Het object is op ca. 5 minuten afstand gelegen van de op-/afrit van de rijksweg A27 (Almere-Breda) en de A12 (Arnhem-Den Haag). De bedrijfsunit is eveneens goed bereikbaar met het openbaar vervoer, zowel met de bus als met de trein is de bereikbaarheid prima. Het NS Station “Castellum” Houten ligt op ca. 10 minuten loopafstand.
Bestemming:
Bedrijventerrein, bedrijven tot en met categorie 3.2.
Een bestemming kan aan verandering onderhevig zijn. Raadpleeg derhalve voor de actuele gegevens de website omgevingswet.overheid.nl of neem contact op met ons kantoor.
Energielabel:
C.
Dataroom:
De nodige achtergrondinformatie hebben wij voor u op een rij gezet in een dataroom.
Voor toegang kunt u contact met ons opnemen.
Waarborgsom: Er zal door koper een waarborgsom gestort worden ter grootte van 10 % van de koopsom.
Notaris: Keuze koper.
Koopakte: Conform model NVM.
Oplevering: Het verkochte zal op de Leveringsdatum terstond na het verlijden van de Leveringsakte aan Koper in bezit worden gesteld, aan koper worden overgedragen en door koper worden aanvaard in de feitelijke, juridische, fiscale, milieukundige (waaronder begrepen de milieukundige staat van de bodem en het grondwater van het verkochte alsmede de eventuele aanwezigheid van asbest en andere voor de gezondheid schadelijke stoffen), bouwkundige en technische staat waarin het zich ten tijde van het ondertekenen van de koopovereenkomst bevond (“as is, where is”).
Koper heeft ter zake van de feitelijke, juridische, fiscale, milieukundige (waaronder begrepen de milieukundige staat van de bodem en het grondwater van het verkochte alsmede de aanwezigheid van asbest en andere voor de gezondheid schadelijke stoffen), bouwkundige en technische staat van het Verkochte geen enkele aanspraak, hoe ook genaamd, jegens verkoper.
Koper en verkoper komen overeen dat de aanwezigheid van enige verontreiniging van het Verkochte (inclusief doch niet beperkt tot asbesthoudende materialen of bodem- of grondwaterverontreiniging) nimmer aanleiding zal zijn tot ontbinding of vernietiging van de koopovereenkomst, tot betaling door Verkoper van enige andere bijdrage of enige schadevergoeding, in welke vorm ook, tot enigerlei verrekening of tot welke aanspraak jegens Verkoper ook.
Transport: In overleg.
Baten en lasten: Alle baten, lasten en verschuldigde canons, waaronder begrepen heffingen die voortvloeien uit de akte van splitsing en/of reglement (indien van toepassing) komen voor rekening van kopende partij vanaf de datum van notarieel transport. De lopende baten, lasten en dergelijke, met uitzondering van de onroerende zaakbelasting wegens het feitelijk gebruik, zullen tussen partijen naar rato worden verrekend.
Kenmerken
Status |
Beschikbaar |
Vraagprijs |
€ 1.975.000 k.k. |
Toegevoegd |
01-01-1970 |
Perceeloppervlakte |
4.016 m2 |
Bedrijfsruimte |
2.930 m2 |
Aanmeldingsreden |
In verkoop genomen |
