Deel met je vrienden
Volledige omschrijving
Te huur
Instapklare bedrijfsunit met lichte kantoorruimte op de verdieping en praktische bedrijfsruimte op de begane grond. Fraai uitzicht over de natuur. In dit pand heeft u een mooie lichte werkplek met raampartijen aan zowel de voor- als zijkant. Recent volledig afgebouwd en gereed om zo in gebruik te nemen.
Deze duurzame unit beschikt over acht zonnepanelen.
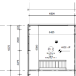
Vloeroppervlak:
Het betreffende oppervlak van de bedrijfsunit is ca. 80,7 m² bruto vloeroppervlak, als volgt verdeeld:
ca. 40,2 m² op de begane grond;
ca. 40,5 m² op de verdieping.
Parkeren:
Bij de bedrijfsunit zijn 2 eigen parkeerplaatsen beschikbaar.
Huurprijs:
⬠14.300,= per jaar, te vermeerderen met BTW.
Voorzieningen:
De unit wordt opgeleverd in de huidige, gebruikte staat, inclusief:
Algemeen:
– meterkast met aansluitingen voor water, elektra en glasvezel;
– betonnen wanden;
– 8 zonnepanelen met omvormer;
– noodverlichting en handblusser;
– geschilderde houten trap;
– led verlichting;
– diverse elektra punten.
Bedrijfsruimte:
– toilet met fontein;
–Ā elektrische overheaddeur;
– enkele elektrapunten;
– glad afgewerkte betonvloer, vloerbelasting 1.500 kg/m²;
– vrije hoogte begane grond ca. 3,7 meter.
Kantoorruimte:
– te openen raam;
– riante pantry met onder- en bovenkasten, vaatwasser;
– tapijt;
– data aansluitingen.
Ligging/bereikbaarheid:
De bedrijfsunit is gelegen op uitstekende locatie op het jonge en compacte bedrijventerrein Gaasperwaard in Vianen, wat pal langs de A27 ligt. Dit bedrijventerrein is dan ook op slechts enkele minuten rijafstand gelegen van de op-/afrit 27 van de rijksweg A27 en heeft van daaruit ook een snelle verbinding met de rijkswegen A2 en de A12.
Ook middels openbaar vervoer is het object goed bereikbaar, de dichtstbijzijnde bushalte ligt op loopafstand aan de noordzijde van het bedrijventerrein.
Bestemming:
De unit mag onder andere worden gebruikt als bedrijfsruimte met ondergeschikte kantoorruimte.
Een bestemming kan aan verandering onderhevig zijn. Raadpleeg derhalve voor de actuele gegevens de website
omgevingsloket.nl, de website van de betreffende gemeente of neem contact op met ons kantoor.
Servicekosten VvE: Circa ⬠90,= per maand op voorschotbasis, te vermeerderen met BTW.
Kosten openbare nutsbedrijven: Rechtstreeks door de huurder te voldoen aan desbetreffende nutsbedrijven.
Betalingen: Huur, BTW en servicekosten per maand vooruit.
Huurtermijn: 3 jaar met een optie tot verlenging.
Opzegtermijn: Uiterlijk 12 maanden voor het aflopen van een huurtermijn;
Huurprijsaanpassing: Jaarlijks, voor het eerst ƩƩn jaar na huuringangsdatum, op basis van het consumptieprijsindexcijfer voor alle huishoudens (CPI, als vastgesteld door het CBS, met als basisjaar 2015).
Zekerheidsstelling: Een bankgarantie of waarborgsom ter grootte van minimaal drie maanden huur te vermeerderen met servicekosten en BTW.
Overige condities: Huurovereenkomst op basis van het standaard model voor de Raad van Onroerende zaken (ROZ).
Aanvaarding: In overleg.
Kenmerken
Status |
Beschikbaar |
Huur |
€ 14.300,- p.j. |
Toegevoegd |
01-01-1970 |
Bedrijfsruimte |
40 m2 |
Aanmeldingsreden |
In verhuur genomen |
