Deel met je vrienden
Volledige omschrijving
Te koop/te huur;
Representatief kantoorgebouw gelegen in het kantorengebied “De Molenzoom” te Houten.
De eigenaar heeft reeds een eerste opzet gemaakt voor de mogelijkheid het complex te transformeren naar wonen, hiervan zijn tekeningen te vinden onder de media. Dit betreft een eerste studie en hier kunnen geen rechten aan worden ontleend.
Vloeroppervlak:
Totaal ca. 1.045 m² verhuurbaar vloeroppervlak, als volgt verdeeld:
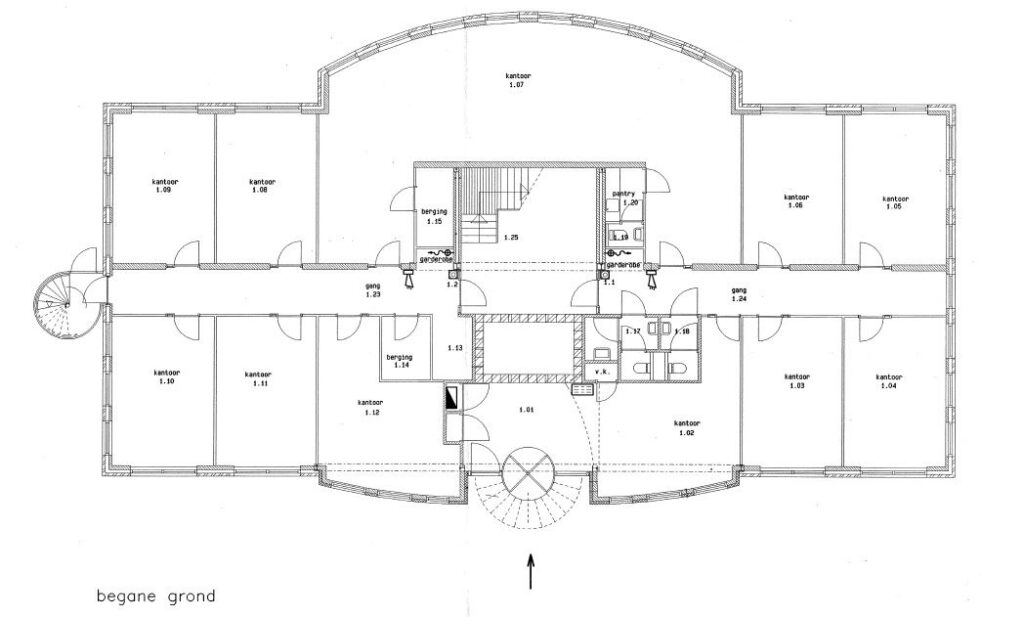
ca. 400 m² kantoorruimte gelegen op de begane grond;
ca. 398 m² kantoorruimte gelegen op de 1e verdieping;
ca. 247 m² kantoorruimte gelegen op de 2e verdieping.
Parkeren:
Bij het kantoorgebouw zijn 12 parkeerplaatsen beschikbaar.
Kadastrale informatie:
Gemeente Houten
Sectie A
Nummer 9140
Perceelgrootte 895 m², grond in volle eigendom.
Koopsom:
€ 1.995.000,= kosten koper, vrij van BTW.
Huurprijs:
€ 120,= per m² per jaar te vermeerderen met BTW.
Voorzieningen:
Het kantoorgebouw wordt opgeleverd in de huidige staat, inclusief:
– entree;
– systeemplafond voorzien van ledverlichting;
– centrale verwarming;
– wand-/kabelgoten;
– airco units in elke ruimte;
– te openen ramen;
– separaat dames – en herentoilet per verdieping;
– pantry.
Energielabel:
A+.
Ligging/bereikbaarheid:
Dit representatieve kantoorgebouw is gelegen nabij het centrum van Houten. De omliggende bebouwing bestaat voornamelijk uit soortgelijke objecten. Per auto is de locatie vanaf de rijksweg A27 via de Rondweg in enkele minuten te bereiken. Het openbaar vervoer is door de aanwezigheid van een spoorverbinding, een bushalte voor het kantoorgebouw en het NS station op loopafstand prima.
Bestemming en gebruik:
Kantoor.
Een bestemming kan aan verandering onderhevig zijn. Raadpleeg derhalve voor de actuele gegevens de website omgevingswet.overheid.nl of neem contact op met ons kantoor.
Voorwaarden koop:
Waarborgsom:
Er zal door koper een waarborgsom gestort worden ter grootte van 10 % van de koopsom.
Notaris:
Keuze koper.
Koopakte:
Conform model NVM.
Oplevering:
In overleg, in huidige staat (“as is, where is”) met alle daarbij behorende rechten, aanspraken zichtbare en onzichtbare gebreken (voor zover bij de kopende partij niet bekend) heersende-/leidende erfdienstbaarheden, kwalitatieve rechten en vrij van hypotheken, beslagen en inschrijvingen daarvan.
Transport:
Gewenste levering eind Q2 2025.
Baten en lasten:
Alle baten, lasten en verschuldigde canons, waaronder begrepen heffingen die voortvloeien uit de akte van splitsing en/of reglement (indien van toepassing) komen voor rekening van kopende partij vanaf de datum van notarieel transport. De lopende baten, lasten en dergelijke, met uitzondering van de onroerende zaakbelasting wegens het feitelijk gebruik, zullen tussen partijen naar rato worden verrekend.
Voorwaarden huur:
Kosten openbare nutsbedrijven:
Rechtstreeks door de huurder te voldoen aan desbetreffende nutsbedrijven.
Betalingen:
Huur te vermeerderen met BTW per maand vooruit.
Huurtermijn:
5 jaar met een verlengingsperiode van 5 jaar.
Opzegtermijn:
Uiterlijk 12 maanden voor het aflopen van een huurtermijn.
Huurprijsaanpassing:
Jaarlijks, voor het eerst één jaar na huuringangsdatum, op basis van het consumptieprijsindexcijfer voor alle huishoudens (CPI, als vastgesteld door het CBS, met als basisjaar 2015).
Zekerheidsstelling:
Een bankgarantie of waarborgsom ter grootte van minimaal drie maanden huur te vermeerderen met BTW.
Overige condities:
Huurovereenkomst op basis van het standaard model van de Raad voor Onroerende Zaken (ROZ).
Aanvaarding:
In overleg.
Kenmerken
Status |
Beschikbaar |
Vraagprijs |
€ 1.995.000 k.k. |
Toegevoegd |
12-11-2024 |
Perceeloppervlakte |
895 m2 |
Kantoorruimte |
1.045 m2 |
Aanmeldingsreden |
In verkoop of verhuur genomen |
