Boerhaaveweg 72
3401 MN, IJsselstein
319 m2 kantoor
319 m2 bedrijfshal
1.063 m2 perceel
Prijs op aanvraag
Deel met je vrienden
Volledige omschrijving
Te koop:
Kantoor-/bedrijfsgebouw met hoogwaardige afwerking en uitstekende klimaatbeheersing, gelegen op een zichtlocatie langs de Baronieweg.
Het object beschikt over riante daglichttoetreding vanwege de vele raampartijen aan twee zijdes.
Koopsom:
⬠775.000,= kosten koper, te vermeerderen met BTW, verleggingsregeling van toepassing.
Vloeroppervlakte:
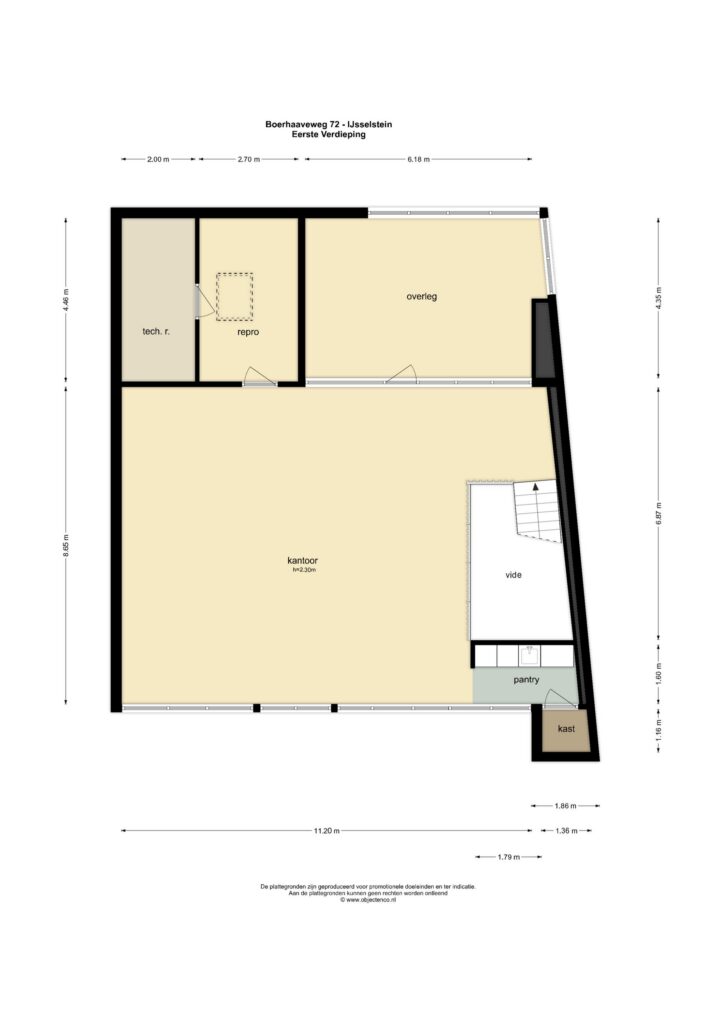
Het totaal verhuurbaar vloeroppervlak bedraagt circa 319 m², als volgt verdeeld:
circa 162 m² kantoorruimte gelegen op de begane grond;
circa 157 m² kantoorruimte gelegen op de 1e verdieping.
Parkeren:
Er behoren 5 parkeerplaatsen bij dit pand.
Kadastrale gegevens:
Gemeente: IJsselstein
Sectie: H
Nummer: 994, 263 m² grond in volle eigendom.
Nummer: 995, mandelig buitenterrein.
Voorzieningen:
Het object wordt opgeleverd in de huidige staat, inclusief:
– 2 warmtepompen;
– 2 mechanische ventilaties met wtw;
– vloerverwarming;
– 42 zonnepanelen;
– uitgebreide pantry v.v. vaatwasser, close-in boiler, 2 koelkasten en veel kastruimte;
– pantry v.v. close-in boiler op de verdieping;
– luxaflex;
– patchkast;
– meterkast met aansluitingen voor gas (niet in gebruik), elektra (3x 80 AmpĆØre), water en glasvezel;
– veegschakeling verlichting alsmede domotica aansturing;
– alarminstallatie;
– intercom;
– systeemplafond met led verlichting;
– tapijt en PVC vloer;
– diverse scheidingswanden, deels v.v. glas;
– aansluitingen voor data en elektra in de vloer en wanden;
– luxe trap;
– te openen ramen;
– brandmeld- en brandblusvoorzieningen.
– vloerbelasting begane grond 1.000 kg/m²;
– vloerbelasting eerste verdieping 400 kg/m²;
– toiletgroep met voorportaal.
Energielabel:
A.
Bouwjaar:
2017.
Bestemming en gebruik:
Bestemming: Bedrijf, dubbelbestemming: Waarde ā Archeologie 1
Functieaanduiding: Bedrijf tot en met categorie 3.1
Een bestemming kan aan verandering onderhevig zijn. Raadpleeg derhalve voor de actuele gegevens de website omgevingsweg.overheid.nl of neem contact op met ons kantoor.
Ligging/bereikbaarheid:
De Boerhaaveweg is gelegen in IJsselstein op het Industrieterrein Paardenveld. Het is goed bereikbaar met eigen vervoer en met het openbaar vervoer. De op-/afrit van de A2 ligt op 1,3 kilometer afstand. Vanaf de Rijksweg A2 is er een goede verbinding met de A27 en de A12. De bushalte woud/Boerhaaveweg ligt op 500 meter afstand en op 1,5 kilometer bevindt zich de tramhalte Hooghe Weard met een verbinding naar Utrecht centraal, Galgenwaard en Science Park via Nieuwegein.
Vereniging van Eigenaren:
Koper is ermee bekend dat hij lid dient te worden van de Vereniging van Eigenaren āBeheersvereniging Boerhaaveweg 40-72ā.
De kosten voor de Vereniging van Eigenaren bedragen ā¬185,= per jaar.
Waarborgsom:
Er zal door koper een waarborgsom gestort worden ter grootte van 10 % van de koopsom.
Notaris:
Keuze koper.
Koopakte:
Conform model NVM.
Oplevering:
Het verkochte zal op de Leveringsdatum terstond na het verlijden van de Leveringsakte aan Koper in bezit worden gesteld, aan koper worden overgedragen en door koper worden aanvaard in de feitelijke, juridische, fiscale, milieukundige (waaronder begrepen de milieukundige staat van de bodem en het grondwater van het verkochte alsmede de eventuele aanwezigheid van asbest en andere voor de gezondheid schadelijke stoffen), bouwkundige en technische staat waarin het zich ten tijde van het ondertekenen van de koopovereenkomst bevond (āas is, where isā). Koper heeft ter zake van de feitelijke, juridische, fiscale, milieukundige (waaronder begrepen de milieukundige staat van de bodem en het grondwater van het verkochte alsmede de aanwezigheid van asbest en andere voor de gezondheid schadelijke stoffen), bouwkundige en technische staat van het Verkochte geen enkele aanspraak, hoe ook genaamd, jegens verkoper. Koper en verkoper komen overeen dat de aanwezigheid van enige verontreiniging van het Verkochte (inclusief doch niet beperkt tot asbesthoudende materialen of bodem- of grondwaterverontreiniging) nimmer aanleiding zal zijn tot ontbinding of vernietiging van de koopovereenkomst, tot betaling door Verkoper van enige andere bijdrage of enige schadevergoeding, in welke vorm ook, tot enigerlei verrekening of tot welke aanspraak jegens Verkoper ook.
Transport:
In overleg.
Baten en lasten:
Alle baten, lasten en verschuldigde canons, waaronder begrepen heffingen die voortvloeien uit de akte van splitsing en/of reglement (indien van toepassing) komen voor rekening van kopende partij vanaf de datum van notarieel transport. De lopende baten, lasten en dergelijke, met uitzondering van de onroerendezaakbelasting wegens het feitelijk gebruik, zullen tussen partijen naar rato worden verrekend.
Kenmerken
Status |
Beschikbaar |
Vraagprijs |
€ 775.000 k.k. |
Toegevoegd |
01-01-1970 |
Perceeloppervlakte |
1.063 m2 |
Kantoorruimte |
319 m2 |
Bedrijfsruimte |
319 m2 |
Aanmeldingsreden |
In verkoop genomen |
