Zwanenkamp 932
3607 PZ, MAARSSEN
103 m2 wonen
130 m2 perceel
4 kamers
€ 469.000,- k.k.
Kan ik dit huis betalen? Wat worden mijn maandlasten?Deel met je vrienden
Volledige omschrijving
Op zoek naar een goed onderhouden gezinshuis in de geliefde wijk Zwanenkamp? Dan is dit gezinshuis ideaal voor jou! Deze tussenwoning beschikt over 3 slaapkamers (terug te brengen naar 4 slaapkamers), vernieuwde keuken uit 2024, een moderne serre, 7 zonnepanelen en een energielabel A.
De wijk Zwanenkamp is een kindvriendelijke buurt nabij de diverse uitvalswegen en dichtbij scholen, kinderdagverblijven en overige voorzieningen. Zwanenkamp heeft een vernieuwd kleinschalig winkelcentrum met o.a. een supermarkt, bloemisterij en bakker. Op korte afstand ligt het winkelcentrum ‘Bisonspoor’, dit is een groot winkelcentrum met diverse winkels, supermarkten en horeca.
Sportliefhebber? Op korte afstand is het moderne zwembad ‘Safari’ gelegen en verder telt Maarssenbroek diverse sportverenigingen met o.a. een tennis-/ voetbal en atletiekvereniging. Daarnaast is er een eigen treinstation met goede verbindingen naar Utrecht en Amsterdam. Op korte loopafstand ligt de bushalte, deze brengt je in een paar minuten naar het treinstation. Maarssen beschikt tevens over een oude dorpskern en een prachtig buitengebied rondom de Vecht, alles op fietsafstand gelegen.
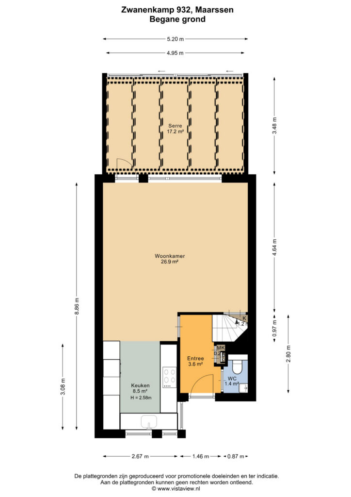
De indeling van het huis is als volgt:
Begane grond: entree, hal met vloerverwarming, vernieuwde meterkast, toiletruimte, trapopgang naar de 1e verdieping en toegangsdeur naar de woonkamer. De woonkamer ligt aan de achterzijde en heeft plek voor een grote zithoek en beschikt over vloerverwarming en toegangsdeur naar de achtertuin. Aan de andere kant is de moderne keuken (2024) gesitueerd met plek voor een ruime eettafel. De greeploze keuken is voorzien van neutrale kleurstelling, inbouwspots, voldoende werkblad en inbouwapparatuur.
Eerste verdieping: vanuit de overloop zijn de 2 in grootte variërende slaapkamers en de badkamer te betreden. De royale hoofdslaapkamer ligt aan de achterzijde en biedt plek voor een groot tweepersoonsbed en een vaste kastenwand. Voorheen waren dit 2 slaapkamers. Aan de voorzijde bevindt zich de 2e slaapkamer, een ideale kinder-/werkkamer. De badkamer is bereikbaar vanaf de hal en beschikt over een douche, toilet, wastafel en raampje voor licht en lucht.
Tweede verdieping: via een vaste trap is de tweede verdieping te betreden. De zolder is op dit moment volledig ingericht met opstelplaats CV-ketel (2023) en wasapparatuur en kan worden gebruikt als 3e slaapkamer. De zolder heeft voldoende licht door de 3 dakramen.
Tuin: via de woonkamer kom je in de heerlijke tuin gelegen op het noordoosten. De tuin ingericht met grote serre, ruim terras, ‘achterom’, een stenen fietsenberging en biedt veel mogelijkheden.
Bijzonderheden:
– woonoppervlakte van ca. 103 m² en perceel van 130m²
– moderne keuken, badkamer en ruime serre;
– grotendeels kunststofkozijnen;
– aanwezigheid van 7 zonnepanelen, vernieuwde CV-ketel en mechanische ventilatie (2023);
– vernieuwde meterkast (2023);
– er is op de 1e verdieping een dakkapel aanwezig;
– diverse verbouwmogelijkheden;
– gelegen in een rustige en kindvriendelijke buurt;
– voldoende parkeergelegenheid voor de deur;
– op loopafstand van een winkelcentrum met o.a. supermarkt;
– energielabel A;
– oplevering in overleg.
In de koopovereenkomst worden de navolgende artikelen opgenomen:
*ouderdomsclausule, vanwege het bouwjaar;
*asbestclausule; er is geen aanwezigheid van asbest bekend, maar gezien de leeftijd van de woning is het niet uit te sluiten.
Interesse in dit huis? Schakel direct jouw eigen NVM-aankoopmakelaar in.
Jouw NVM-aankoopmakelaar komt op voor jouw belang en bespaart je tijd, geld en zorgen.
Looking for a well-maintained family home in the popular Zwanenkamp neighborhood? Then this family home is ideal for you! This terraced house has 3 bedrooms (can be converted back to 4 bedrooms), a renovated kitchen from 2024, a modern conservatory, 7 solar panels, and an energy label A.
The Zwanenkamp neighborhood is a child-friendly area close to various roads and near schools, daycare centers, and other amenities. Zwanenkamp has a renovated small-scale shopping center with a supermarket, florist, and bakery, among other things. A short distance away is the ‘Bisonspoor’ shopping center, a large shopping center with various shops, supermarkets, and restaurants.
Sports enthusiast? The modern ‘Safari’ swimming pool is located a short distance away, and Maarssenbroek also has various sports clubs, including a tennis/soccer and athletics club. There is also a train station with good connections to Utrecht and Amsterdam. The bus stop is a short walk away and takes you to the train station in a few minutes. Maarssen also has an old village center and beautiful countryside around the Vecht river, all within cycling distance.
The layout of the house is as follows:
Ground floor: entrance hall with underfloor heating, renovated meter cupboard, toilet, staircase to the first floor, and door to the living room. The living room is located at the rear and has space for a large sitting area and features underfloor heating and access door to the backyard. On the other side is the modern kitchen (2024) with space for a large dining table. The handle-less kitchen has a neutral color scheme, recessed spotlights, ample counter space, and built-in appliances.
First floor: the landing leads to two bedrooms of varying sizes and the bathroom. The spacious master bedroom is located at the rear and offers space for a large double bed and a built-in wardrobe. Previously, these were two bedrooms. At the front is the second bedroom, ideal as a children's room or study. The bathroom is accessible from the hall and has a shower, toilet, sink, and window for light and air.
Second floor: the second floor is accessed via a fixed staircase. The attic is currently fully furnished with space for a central heating boiler (2023) and washing equipment and can be used as a third bedroom. The attic has plenty of light thanks to the three skylights.
Garden: the living room opens onto the lovely northeast-facing garden. The garden features a large conservatory, spacious terrace, back entrance, stone bicycle shed, and offers many possibilities.
Details:
- living area of approx. 103 m² and plot of 130 m²
- modern kitchen, bathroom, and spacious conservatory;
- mostly plastic window frames;
- 7 solar panels, new boiler, and mechanical ventilation (2023);
- renewed meter cupboard (2023);
- there is a dormer window on the 1st floor;
- various renovation possibilities;
- located in a quiet and child-friendly neighborhood;
- ample parking in front of the door;
- within walking distance of a shopping center with a supermarket, among other things;
- energy label A;
- delivery in consultation.
The following articles will be included in the purchase agreement:
*age clause, due to the year of construction;
*asbestos clause; there is no known presence of asbestos, but given the age of the house, it cannot be ruled out.
Interested in this house? Call in your own NVM purchase broker immediately.
Your NVM purchase broker will represent your interests and save you time, money, and worry.
Kenmerken
Status |
Onder bod |
Toegevoegd |
23-10-2025 |
Vraagprijs |
€ 469.000,- k.k. |
Appartement vve bijdrage |
€ 0,- |
Woonoppervlakte |
103 m2 |
Perceeloppervlakte |
130 m2 |
Externe bergruimte |
25 m2 |
Gebouwgebonden buitenruimte |
0 m2 |
Overige inpandige ruimte |
0 m2 |
Inhoud |
357 m3 |
Aantal kamers |
4 |
Aantal slaapkamers |
3 |
Bouwvorm |
Bestaande bouw |
Energieklasse |
A |
CV ketel type |
Atag |
Soort(en) verwarming |
Cv Ketel, Vloerverwarming Gedeeltelijk |
CV ketel bouwjaar |
2023 |
CV ketel brandstof |
Gas |
CV ketel eigendom |
Eigendom |
Soort(en) warm water |
Cv Ketel |
Heb je vragen over deze woning?
Neem contact op met
Dana de Langen
Vestiging
Maarssen
Wil je ook door ons geholpen worden? Doe onze gratis huiswaarde check!
Je hebt de keuze uit een online waardebepaling of de nauwkeurige waardebepaling. Beide zijn gratis. Uiteraard is het altijd mogelijk om na de online waardebepaling alsnog een afspraak te maken voor een nauwkeurige waardebepaling. Ga je voor een accurate en complete waardebepaling of voor snelheid en gemak?
