Zirkoondrift 10
3436 BE, NIEUWEGEIN
52 m2 wonen
perceel
3 kamers
€ 335.000,- k.k.
Kan ik dit huis betalen? Wat worden mijn maandlasten?Deel met je vrienden
Volledige omschrijving
Welkom aan de Zirkoondrift 10 te Nieuwegein!
Unieke woning met twee woonlagen aan de Zirkoondrift 10 te Nieuwegein! Deze verrassend leuke woning beschikt over een zeer grote tuin met een heerlijke overkapping en een praktische berging. Op de eerste verdieping bevindt zich bovendien een ruime serre, ideaal als extra leefruimte of relaxplek. Met energielabel C én de ligging op korte afstand van CityPlaza, het grootste winkelcentrum van Nieuwegein, is dit een ideale plek voor wie comfortabel wil wonen met alle voorzieningen om de hoek.
Eerste verdieping:
Via de trap aan de voorzijde bereik je de entree van het appartement. Hier bevindt zich een royale ruimte met veel bergruimte en de voordeur.
Bij binnenkomst kom je in de hal, die toegang biedt tot de badkamer en de trap naar de tweede verdieping. De badkamer (ca. 3 m²) is compleet uitgevoerd met een toilet, wastafelmeubel, wastafel en douche. De badkamer is 9 jaar geleden geplaatst.
Op deze verdieping bevindt zich tevens de eerste slaapkamer van ruim 11 m², prettig van formaat en geschikt als slaap- of werkkamer.
De woonkamer van maar liefst 25 m² is licht en ruim opgezet en staat in open verbinding met de keuken. De half open keuken is voorzien van diverse inbouwapparatuur, waaronder een oven, gaskookplaat, koelkast en vriezer. Aangrenzend is een praktische kast met wasmachineaansluiting.
Vanuit de woonkamer stap je zo de serre in, een heerlijke ruimte van 12 m² met uitzicht op de royale achtertuin. Via een trap is de tuin vanuit hier direct te bereiken.
Tweede verdieping:
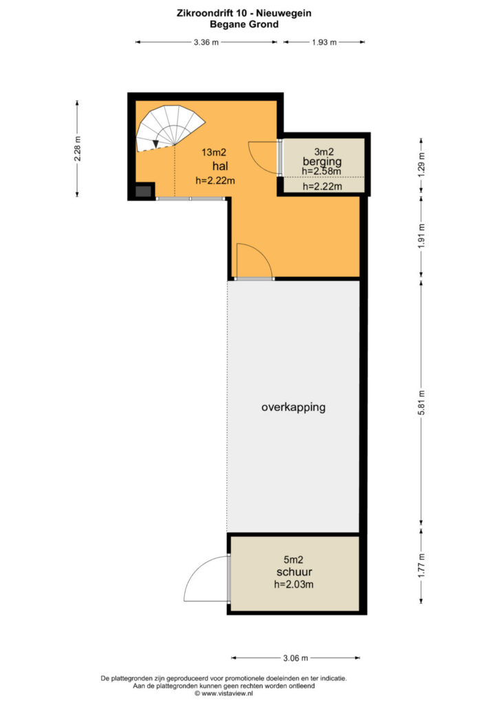
Op de tweede verdieping arriveer je op een overloop van 6 m², met toegang tot een handige berging van 3 m². Daarnaast bevindt zich hier de tweede slaapkamer (ca. 6 m²).
Tuin:
De tuin is zonder twijfel een van de grootste pluspunten van deze woning. Deze is zeer royaal en biedt volop mogelijkheden voor tuinliefhebbers, speelruimte of een heerlijke loungehoek. Onder de ruime overkapping geniet je zowel in de zomer als in het voor- en najaar comfortabel van het buitenleven.
Bijzonderheden:
– Geen VvE, kosten onderling verdeeld;
– CV-ketel 2014 is eigendom;
– Dichtbij alle voorzieningen zoals CityPlaza en openbaar vervoer;
– Royale achtertuin en serre;
– Energielabel C;
– Zonnepanelen aanwezig;
– Aparte berging in de steeg bij de woning;
– Omdat de woning uit 1976 dateert zal er een ouderdoms-clausule in de koopakte komen te staan;
– Woning is gelegen in een rustig hofje.
Energielabel: C
Oplevering in overleg.
Interesse in dit huis? Schakel direct jouw eigen NVM-aankoopmakelaar in.
De NVM-aankoopmakelaar komt op voor jouw belang en bespaart tijd, geld en zorgen.
Adressen van collega NVM-aankoopmakelaars in Nieuwegein zijn te vinden op Funda.
Kenmerken
Status |
Beschikbaar |
Toegevoegd |
26-11-2025 |
Vraagprijs |
€ 335.000,- k.k. |
Woonoppervlakte |
52 m2 |
Externe bergruimte |
39 m2 |
Gebouwgebonden buitenruimte |
0 m2 |
Overige inpandige ruimte |
17 m2 |
Inhoud |
244 m3 |
Aantal kamers |
3 |
Aantal slaapkamers |
2 |
Bouwvorm |
Bestaande bouw |
Energieklasse |
C |
CV ketel type |
Intergas |
Soort(en) verwarming |
Cv Ketel |
CV ketel bouwjaar |
2014 |
CV ketel brandstof |
Gas |
CV ketel eigendom |
Eigendom |
Soort(en) warm water |
Cv Ketel |
Heb je vragen over deze woning?
Neem contact op met
Tijn Harlaar
Vestiging
Nieuwegein
Wil je ook door ons geholpen worden? Doe onze gratis huiswaarde check!
Je hebt de keuze uit een online waardebepaling of de nauwkeurige waardebepaling. Beide zijn gratis. Uiteraard is het altijd mogelijk om na de online waardebepaling alsnog een afspraak te maken voor een nauwkeurige waardebepaling. Ga je voor een accurate en complete waardebepaling of voor snelheid en gemak?
