van Halllaan 8
3431 BW, NIEUWEGEIN
72 m2 wonen
149 m2 perceel
5 kamers
€ 395.000,- k.k.
Kan ik dit huis betalen? Wat worden mijn maandlasten?Deel met je vrienden
Volledige omschrijving
Een woning met potentie: deze woning heeft drie slaapkamers, een lekkere ruime tuin op het zonnige westen gericht, fijne zolder en de locatie is ideaal, op loopafstand van het stadscentrum en winkelcentrum Makado. Alle voorzieningen zijn hiermee binnen handbereik, zoals openbaar vervoer (bus en tram), winkels, sportgelegenheden en de uitvalswegen. Een woning met drie slaapkamers, een ruime tuin om zelf nog naar eigen hand te zetten!
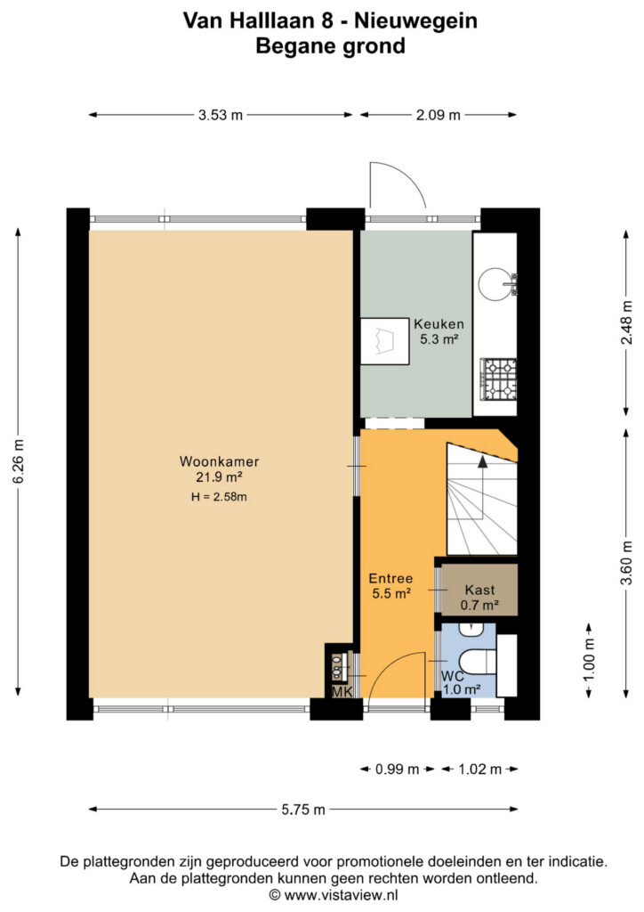
Indeling
Entree, hal, toilet, meterkast en trapopgang. De keuken is gesloten ten opzichte van de woonkamer en is circa 5 m² groot. De woonkamer is circa 22 m² groot en is voorzien van grote raampartijen. Via de keuken bereik je de tuin, welke heerlijk ruim is én zonnig gelegen is op het westen! Er is een handige stenen berging achterin de tuin van 11 m² groot.
Eerste verdieping:
Overloop, drie slaapkamers van respectievelijk 12, 9 en 5 m². De badkamer is circa 4 m² groot en heeft een douche, tweede toilet en een wastafel.
Tweede verdieping:
Vaste trap naar de verdieping, nu in gebruik als bergzolder. Niet meegerekend in woonoppervlak door plafondhoogte, maar absoluut goed bruikbaar!
Bijzonderheden:
– Ruime gezinswoning met zonnige tuin op het westen;
– gelegen op een aantrekkelijke plek in Jutphaas wijkersloot;
– vergrote berging in de achtertuin;
– voorzien van isolatieglas;
– gelegen aan een leuke en rustige straat.
Oplevering: in overleg
Energielabel: E
Interesse in dit huis? Schakel direct jouw eigen NVM-aankoopmakelaar in.
De NVM-aankoopmakelaar komt op voor jouw belang en bespaart tijd, geld en zorgen.
Adressen van collega NVM-aankoopmakelaars in Nieuwegein zijn te vinden op Funda.
Kenmerken
Status |
Verkocht onder voorbehoud |
Toegevoegd |
07-10-2025 |
Vraagprijs |
€ 395.000,- k.k. |
Appartement vve bijdrage |
€ 0,- |
Woonoppervlakte |
72 m2 |
Perceeloppervlakte |
149 m2 |
Externe bergruimte |
11 m2 |
Gebouwgebonden buitenruimte |
0 m2 |
Overige inpandige ruimte |
7 m2 |
Inhoud |
294 m3 |
Aantal kamers |
5 |
Aantal slaapkamers |
3 |
Bouwvorm |
Bestaande bouw |
Energieklasse |
E |
Soort(en) verwarming |
Cv Ketel |
CV ketel eigendom |
Eigendom |
Soort(en) warm water |
Cv Ketel |
Heb je vragen over deze woning?
Neem contact op met
Tijn Harlaar
Vestiging
Nieuwegein
Wil je ook door ons geholpen worden? Doe onze gratis huiswaarde check!
Je hebt de keuze uit een online waardebepaling of de nauwkeurige waardebepaling. Beide zijn gratis. Uiteraard is het altijd mogelijk om na de online waardebepaling alsnog een afspraak te maken voor een nauwkeurige waardebepaling. Ga je voor een accurate en complete waardebepaling of voor snelheid en gemak?
