Tuinbouw 49
3991 NC, HOUTEN
120 m2 wonen
127 m2 perceel
5 kamers
€ 545.000,- k.k.
Kan ik dit huis betalen? Wat worden mijn maandlasten?Deel met je vrienden
Volledige omschrijving
Ruime en instapklare gezinswoning op toplocatie in Houten
Een modern en goed onderhouden woonhuis uit 2000, gelegen op een geliefde locatie in Houten. Met een woonoppervlakte van ca. 120 m², vier volwaardige slaapkamers en een eigen oprit, is dit de ideale woning voor gezinnen of thuiswerkers die comfort en ruimte zoeken.
De voormalige garage is omgebouwd tot extra slaapkamer of werkruimte, wat deze woning net dat beetje extra geeft. De woonkamer is licht en ruim, de keuken is keurig onderhouden en biedt alle gemakken van nu. De moderne badkamer is voorzien van een ligbad en strak afgewerkt, een fijne plek om te ontspannen na een lange dag.
De ligging? Die is perfect: op korte afstand van winkelcentrum Castellum met al zijn voorzieningen, nabij scholen, het NS-station en uitvalswegen. Je woont hier rustig, maar met alles binnen handbereik. Door de aanwezigheid van een NS-station op loopafstand sta je met 15 minuten in hartje Utrecht.
Indeling:
Begane grond
Nadat je de auto voor de deur op de eigen oprit hebt geparkeerd loop je via de voordeur de woning binnen. Direct links van de entree bevindt zich de meterkast. Naast de meterkast tref je de trapopgang naar de eerste verdieping en tegenover deze opgang vind je de eerste slaapkamer van de woning, welke oorspronkelijk een garage was. Vervolgens tref je de bijkeuken met de opstelling voor wasmachine en droger met een fraaie wastafel. Hier tref je de tweede slaapkamer van de woning. Vanuit deze slaapkamer of de bijkeuken bereik je de achtertuin.
De fraai beplante achtertuin biedt meer dan voldoende ruimte om leuke zitgedeeltes te situeren om te genieten van het buitenleven tijdens zonnige dagen en gezellige avonden.
Eerste verdieping
Vanuit de tuin kun je gemakkelijk met de trap via het kleine balkon de eerste verdieping bereiken. Uiteraard kun je ook vanuit de entree naar de eerste verdieping. Hier stap je meteen de open woonkamer binnen. Direct valt de vele hoeveelheid lichtinval op doordat de gehele achtergevel van deze verdieping beschikt over beglazing. Ook aan de voorzijde komt er veel licht binnen door de openslaande deuren. De keuken ziet er netjes uit en beschikt over alle nodige inbouwapparatuur. Door de schuin aflopende wanden creëer je hier een perfecte ruimte voor de eettafel. Grenzend aan de trapopgang vind je de betegelde toiletruimte, deze is voorzien van hangend toilet en fontein.
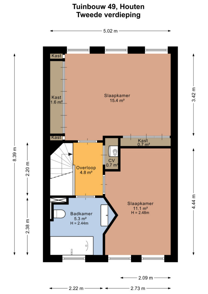
Tweede verdieping
Middels de trapopgang lopen we door naar de tweede overloop van de tweede verdieping. Hier treffen we de overige twee ruime slaapkamers. De grootste slaapkamer beschikt over twee ingebouwde kasten en airco. Verder vinden we hier een separate ruimte waar zich de WTW-installatie bevindt. De moderne badkamer beschikt over een ligbad, douche, mooie waskom met wastafelmeubel en een tweede hangend toilet.
Interesse? Maak snel een afspraak voor een bezichtiging en laat je verrassen door de ruimte en het comfort die deze woning te bieden heeft!
Aanvaarding: in overleg.
Interesse in dit huis? Schakel direct jouw eigen NVM-aankoopmakelaar in.
De NVM-aankoopmakelaar komt op voor jouw belang en bespaart tijd, geld en zorgen.
Adressen van collega NVM-aankoopmakelaars in Houten zijn te vinden op Funda.
Spacious, Move-in Ready Family Home in a Prime Houten Location
A modern and well-maintained home built in 2000, situated in a highly sought-after area of Houten. With approximately 120 m² of living space, four full-sized bedrooms, and a private driveway, this property is ideal for families or remote workers seeking both comfort and space.
The former garage has been converted into an additional bedroom or workspace, offering extra flexibility. The living room is bright and spacious, the kitchen is well-maintained and equipped with all modern conveniences. The contemporary bathroom features a bathtub and sleek finishes—perfect for unwinding after a long day.
**Location? Absolutely ideal.**
The home is within walking distance of Castellum shopping center with all its amenities, as well as close to schools, the train station, and major roads. You’ll enjoy a peaceful living environment with everything you need just around the corner. With the NS train station only a short walk away, you're in the heart of Utrecht within 15 minutes.
Layout
Ground Floor
After parking your car on the private driveway, you enter the home through the front door. Immediately to the left is the fuse box, with the staircase to the first floor just beyond. Opposite the staircase is the first bedroom—originally the garage. Adjacent is the utility room with space for a washer and dryer, as well as a stylish sink. Here you’ll also find the second bedroom. Both this bedroom and the utility room provide access to the backyard.
The beautifully landscaped garden offers plenty of room to create inviting seating areas—perfect for enjoying sunny days and cozy evenings outdoors.
First Floor
The first floor is accessible via a small balcony and staircase from the backyard, or via the internal stairs from the entrance hall. Here, you step directly into the open-plan living room. The space is filled with natural light, thanks to full-width windows at the rear and French doors at the front. The kitchen is neat and fully equipped with built-in appliances. The sloping walls create a cozy dining area. Adjacent to the staircase is the tiled toilet room, featuring a wall-mounted toilet and hand basin.
Second Floor
Continuing up the stairs, the second-floor landing leads to two additional spacious bedrooms. The master bedroom features two built-in wardrobes and air conditioning. A separate utility space houses the heat recovery system (WTW). The modern bathroom is equipped with a bathtub, shower, stylish basin with vanity unit, and a second wall-mounted toilet.
Interested?
Schedule a viewing today and be surprised by the space and comfort this home has to offer!
Acceptance: In consultation.
Interested in this home?
Make sure to contact your own NVM purchasing agent.
An NVM purchasing agent represents your interests and saves you time, money, and stress.
You can find a list of fellow NVM purchasing agents in Houten on Funda.
Kenmerken
Status |
Beschikbaar |
Toegevoegd |
07-10-2025 |
Vraagprijs |
€ 545.000,- k.k. |
Appartement vve bijdrage |
€ 0,- |
Woonoppervlakte |
120 m2 |
Perceeloppervlakte |
127 m2 |
Externe bergruimte |
0 m2 |
Gebouwgebonden buitenruimte |
8 m2 |
Overige inpandige ruimte |
0 m2 |
Inhoud |
392 m3 |
Aantal kamers |
5 |
Aantal slaapkamers |
4 |
Bouwvorm |
Bestaande bouw |
Energieklasse |
A |
Soort(en) verwarming |
Stadsverwarming, Warmte Terugwininstallatie |
Soort(en) warm water |
Stadsverwarming |
Heb je vragen over deze woning?
Neem contact op met
Anne Marie van Bentum
Vestiging
Houten
Wil je ook door ons geholpen worden? Doe onze gratis huiswaarde check!
Je hebt de keuze uit een online waardebepaling of de nauwkeurige waardebepaling. Beide zijn gratis. Uiteraard is het altijd mogelijk om na de online waardebepaling alsnog een afspraak te maken voor een nauwkeurige waardebepaling. Ga je voor een accurate en complete waardebepaling of voor snelheid en gemak?
