Saffierdrift 7
3436 BZ, NIEUWEGEIN
87 m2 wonen
perceel
4 kamers
€ 375.000,- k.k.
Kan ik dit huis betalen? Wat worden mijn maandlasten?Deel met je vrienden
Volledige omschrijving
Heerlijk ruime maisonnette met een woonoppervlak van circa 87 m² groot, drie goede slaapkamers en een tuin! Dit appartement heeft alles om lang in te kunnen blijven wonen. De afwerking is erg net, huidige bewoners hebben mooi vernieuwd, gemoderniseerd en keurig bewoond. De keuken is in 2022 vernieuwd en de gehele begane grond is ook gestuct. Zowel begane grond als de eerste verdieping hebben een mooie nieuwe vloer. Ook het toilet beneden is vernieuwd. De ligging is super centraal: op loopafstand van winkelcentra Muntplein en City Plaza, de supermarkt op de Walnootgaarde, het openbaar vervoer is snel te bereiken (tram en bus) en scholen zijn dichtbij. Vanaf hier ben je binnen enkele minuten op de uitvalswegen.
Indeling:
Begane grond:
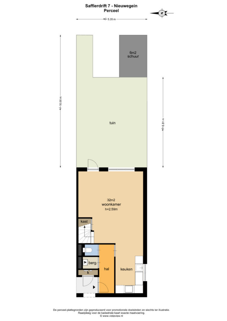
Hal met bergruimte/ opstelling cv-ketel, toilet (stijlvol vernieuwd). De woonkamer is circa 32 m² groot en is tuingericht. De laminaat vloer is vernieuwd en ook zijn alle wanden gestuct. De afwerking is keurig. De keuken ligt aan de voorkant van het appartement en is in L-vorm. In 2022 is de keuken vernieuwd met de benodigde inbouwapparatuur en een stijlvolle, donkere kleurstelling.
De tuin is heerlijk ruim, is zowel breed als diep en is gelegen op het oosten. Een heerlijke extra voor iedereen die graag buiten is en een tuin kan waarderen! In de tuin is een stenen berging van circa 6 m². Er is een achterom.
Eerste verdieping:
Drie slaapkamers van 7, 12 en 13 m² groot. De slaapkamers zijn van goed formaat. Twee slaapkamers liggen aan de achterzijde van de woning en de grootste slaapkamer ligt naast de badkamer, aan de voorzijde van de woning. Ook de badkamer is prettig ruim met circa 8 m²! De badkamer is voorzien van tweede toilet, wasmachine-aansluiting, dubbele wastafel en inloopdouche. De badkamer is niet gemoderniseerd, maar keurig en wit van kleurstelling. Handig is het raam in de badkamer, voor het nodige daglicht en ventilatie mogelijkheden.
Bijzonderheden:
– Woonoppervlak van circa 87 m², drie ruime slaapkamers;
– Maisonnette met een ruime tuin, achterom en stenen berging;
– Erg nette afwerking, met nieuwe vloeren, gestucte wanden begane grond, keuken uit 2020 en een vernieuwd toilet op de begane grond;
– Erg ruime badkamer (circa 8 m²) met tweede toilet;
– Super centrale ligging in Nieuwegein: alle voorzieningen zijn binnen handbereik;
– Een appartement om lang te kunnen blijven wonen, vanwege de drie slaapkamers en de tuin!
Oplevering: in overleg
Energielabel: C
Aanvaarding in overleg.
Interesse in dit huis? Schakel direct uw eigen NVM-aankoopmakelaar in.
Uw NVM-aankoopmakelaar komt op voor uw belang en bespaart u tijd, geld en zorgen.
Adressen van collega NVM-aankoopmakelaars in Nieuwegein vindt u op Funda.
Kenmerken
Status |
Beschikbaar |
Toegevoegd |
28-10-2025 |
Vraagprijs |
€ 375.000,- k.k. |
Appartement vve bijdrage |
€ 260,- |
Woonoppervlakte |
87 m2 |
Externe bergruimte |
6 m2 |
Gebouwgebonden buitenruimte |
0 m2 |
Overige inpandige ruimte |
1 m2 |
Inhoud |
316 m3 |
Aantal kamers |
4 |
Aantal slaapkamers |
3 |
Bouwvorm |
Bestaande bouw |
Energieklasse |
C |
CV ketel type |
Intergas Kompakt HRE |
Soort(en) verwarming |
Cv Ketel |
CV ketel eigendom |
Eigendom |
Soort(en) warm water |
Cv Ketel |
Heb je vragen over deze woning?
Neem contact op met
Jolynn Geerts
Vestiging
Nieuwegein
Wil je ook door ons geholpen worden? Doe onze gratis huiswaarde check!
Je hebt de keuze uit een online waardebepaling of de nauwkeurige waardebepaling. Beide zijn gratis. Uiteraard is het altijd mogelijk om na de online waardebepaling alsnog een afspraak te maken voor een nauwkeurige waardebepaling. Ga je voor een accurate en complete waardebepaling of voor snelheid en gemak?
