Laakse Weide 6
4128 AA, LEXMOND
135 m2 wonen
152 m2 perceel
5 kamers
€ 550.000,- k.k.
Kan ik dit huis betalen? Wat worden mijn maandlasten?Deel met je vrienden
Volledige omschrijving
Jonge, moderne tussenwoning uit 2019 met instapklare afwerking, vier slaapkamers en zonnige tuin
Ben je op zoek naar een moderne, duurzame en sfeervolle woning waar je zó in kunt trekken? Deze fijne tussenwoning uit 2019 biedt een comfortabele leefomgeving met een lichte woonkamer, vier volwaardige slaapkamers en een zonnige tuin op het zuiden. Een ideale plek voor gezinnen die graag rustig wonen met voorzieningen binnen handbereik.
Bouwjaar: 2019. Woonoppervlakte: ca. 135 m². Perceeloppervlakte: 152 m²
De woning ligt in een rustige en groene woonomgeving, met alle dagelijkse voorzieningen binnen handbereik. Op korte fietsafstand vind je winkels, sportverenigingen, gezondheidszorg en goede scholen voor zowel basis- als voortgezet onderwijs. Voor ontspanning wandel je binnen enkele minuten naar de prachtige uiterwaarden van de Lek. Daarnaast is er een goede busverbinding, en zijn de uitvalswegen A2 en A27 in circa vijf minuten bereikbaar, waardoor omliggende steden uitstekend te bereiken zijn.
Indeling:
Begane grond:
Je komt binnen in de hal met toegang tot de garderobekast, meterkast, het toilet, de woonkamer en de trap naar de eerste verdieping. De woonkamer (ca. 32 m²) is een fijne, lichte leefruimte met het zitgedeelte aan de achterzijde. Grote raampartijen en de openslaande deuren naar de tuin zorgen voor een prettige lichtinval en verbinden binnen met buiten. De ruimte is strak afgewerkt met een fraaie parketvloer.
Aan de voorzijde bevindt zich de moderne open keuken (ca. 12 m²) in een dubbele wandopstelling. Deze is uitgerust met diverse inbouwapparatuur, waaronder een inductiekookplaat, vaatwasser, koel-/vriescombinatie en combi-oven. Het ruime werkblad, de vele opbergruimte en de grote spoelbak maken dit tot een praktische en fijne keuken voor kookliefhebbers.
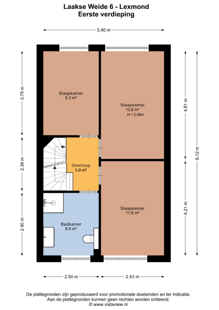
Eerste verdieping:
De overloop geeft toegang tot drie slaapkamers van ca. 14 m², 12 m² en 9 m², evenals de badkamer (ca. 7 m²). De badkamer heeft een moderne uitstraling en is ingericht met een inloopdouche, tweede toilet, wastafelmeubel en een raam voor licht en ventilatie.
Tweede verdieping:
Deze verdieping is in 2021 verbouwd, waarbij drie dakramen zijn geplaatst en er een scheidingswand is aangebracht om een extra slaapkamer te creëren. Een groot voordeel van deze indeling is dat er zowel een ruime overloop als een volwaardige vierde slaapkamer is ontstaan.
De overloop (ca. 13 m²) beschikt over de witgoedaansluitingen en de opstelling van de cv-ketel (Intergas, 2019) en mechanische ventilatie. Aansluitend bevindt zich de strak afgewerkte vierde slaapkamer van ca. 16 m², die door de nokhoogte van ruim 3,5 meter een ruimtelijke en prettige sfeer biedt. Achter de knieschotten is extra bergruimte beschikbaar.
Tuin:
Via de openslaande deuren of via de achterom bereik je de verzorgde en sfeervolle achtertuin. Dankzij de ligging op het zuidwesten geniet je van veel zon in de middag en avond, ideaal voor wie houdt van buiten eten, borrelen of ontspannen na werk. De tuin is fraai aangelegd met onder andere een pergola en er is buitenzonwering aanwezig, wat op warme dagen extra comfort biedt.
Achterin staat een praktische berging van ca. 5 m², geschikt voor fietsen, tuingereedschap en extra opslag. Parkeren kan direct voor de deur op de openbare parkeerplaatsen.
Bijzonderheden:
– Tweede verdieping verbouwd in 2021 (extra slaapkamer gecreëerd)
– Energiezuinig, volledig geïsoleerd en voorzien van HR++ glas
– Zonnige tuin op het zuiden.
– Strakke en verzorgde afwerking door de gehele woning
– Moderne, instapklare tussenwoning (2019)
Aanvaarding: In overleg
Energielabel: A
Interesse in dit huis? Schakel direct je eigen NVM-aankoopmakelaar in.
Een NVM-aankoopmakelaar komt op voor jouw belang en bespaart je tijd, geld en zorgen.
Adressen van collega NVM-aankoopmakelaars in Lexmond vind je op Funda.
Young, modern terraced house from 2019 with move-in-ready finish, four bedrooms, and a sunny garden
Are you looking for a modern, sustainable, and stylish home you can move into right away? This lovely terraced house from 2019 offers a comfortable living environment with a bright living room, four full-sized bedrooms, and a sunny southwest-facing garden — an ideal place for families who enjoy peaceful living with all amenities nearby.
Year built: 2019
Living area: approx. 135 m²
Plot size: 152 m²
The house is located in a quiet and green residential area with all daily facilities within easy reach. Shops, sports clubs, healthcare, and good schools (both primary and secondary) are a short bike ride away. For relaxation, you can walk to the beautiful floodplains of the Lek River in just a few minutes. Major roads A2 and A27 are reachable in about five minutes, giving excellent access to nearby cities.
Layout
Ground floor:
You enter through the hall with access to the wardrobe, utility closet, toilet, living room, and stairs to the first floor. The living room (approx. 32 m²) is a bright and comfortable space with the sitting area at the rear. Large windows and French doors to the garden provide plenty of natural light and a seamless indoor-outdoor connection. The room is neatly finished with plastered walls and an elegant parquet floor.
At the front is the modern open kitchen (approx. 12 m²) in a double-wall layout, equipped with various built-in appliances including an induction hob, dishwasher, fridge-freezer, and combi oven. The spacious worktop, ample storage, and large sink make it a practical and pleasant kitchen for cooking enthusiasts.
First floor:
The landing provides access to three bedrooms of approx. 14 m², 12 m², and 9 m², as well as the bathroom (approx. 7 m²). The bathroom has a modern look and features a walk-in shower, second toilet, washbasin cabinet, and a window for light and ventilation.
Second floor:
This floor was remodeled in 2021, adding three skylights and a partition wall to create an extra bedroom. This smart layout offers both a spacious landing and a full fourth bedroom.
The landing (approx. 13 m²) includes laundry connections and houses the central heating system (Intergas, 2019) and mechanical ventilation. The neatly finished fourth bedroom (approx. 16 m²) benefits from a ceiling height of over 3.5 meters, giving it an airy and pleasant atmosphere. Additional storage is available behind the knee walls.
Garden:
French doors or the rear gate lead you to the well-kept, inviting backyard. Facing southwest, it enjoys plenty of afternoon and evening sun — perfect for outdoor dining, drinks, or relaxing after work. The garden features a pergola and exterior sunshades for extra comfort on warm days.
At the back is a practical storage shed (approx. 5 m²), suitable for bikes, tools, and extra storage. Parking is available directly in front of the house on public spaces.
Key features:
Second floor remodeled in 2021 (extra bedroom added)
Energy-efficient, fully insulated, and fitted with HR++ glazing
Sunny southwest-facing garden
Modern and well-maintained finish throughout
Move-in-ready terraced house (2019)
Transfer: By mutual agreement
Energy label: A
Interested in this home?
Engage your own NVM purchasing agent.
An NVM agent represents your interests and can save you time, money, and hassle.
Addresses of fellow NVM agents in Lexmond can be found on Funda.
Kenmerken
Status |
Beschikbaar |
Toegevoegd |
05-11-2025 |
Vraagprijs |
€ 550.000,- k.k. |
Appartement vve bijdrage |
€ 0,- |
Woonoppervlakte |
135 m2 |
Perceeloppervlakte |
152 m2 |
Externe bergruimte |
5 m2 |
Gebouwgebonden buitenruimte |
1 m2 |
Overige inpandige ruimte |
0 m2 |
Inhoud |
483 m3 |
Aantal kamers |
5 |
Aantal slaapkamers |
4 |
Bouwvorm |
Bestaande bouw |
Energieklasse |
A |
CV ketel type |
Intergas |
Soort(en) verwarming |
Cv Ketel |
CV ketel bouwjaar |
2019 |
CV ketel brandstof |
Gas |
CV ketel eigendom |
Eigendom |
Soort(en) warm water |
Cv Ketel |
Heb je vragen over deze woning?
Neem contact op met
Mirjam Groen
Vestiging
Vianen
Wil je ook door ons geholpen worden? Doe onze gratis huiswaarde check!
Je hebt de keuze uit een online waardebepaling of de nauwkeurige waardebepaling. Beide zijn gratis. Uiteraard is het altijd mogelijk om na de online waardebepaling alsnog een afspraak te maken voor een nauwkeurige waardebepaling. Ga je voor een accurate en complete waardebepaling of voor snelheid en gemak?
