Kasteeltuin 6
3994 ZH, HOUTEN
139 m2 wonen
167 m2 perceel
5 kamers
€ 660.000,- k.k.
Kan ik dit huis betalen? Wat worden mijn maandlasten?Deel met je vrienden
Volledige omschrijving
**OPEN HUIS Zaterdag 14 februari 2026 van 11:00 uur tot 12:30 uur.**
Een droomhuis waar ruimte, comfort én ligging perfect samenkomen! Deze riante eengezinswoning in Houten is absoluut iets voor jou! Gelegen op een ideale locatie, op korte afstand van de prachtige recreatieplas De Rietplas, biedt deze woning alles wat je nodig hebt. Bovendien fiets je in een handomdraai naar het rustige buitengebied, waar je heerlijk kunt genieten van de natuur.
Met parkeergelegenheid op eigen terrein én een zonnige tuin is dit het perfecte huis voor een gezin. De woning ligt centraal, met gemakkelijke toegang tot uitvalswegen en op slechts een steenworp afstand van Het Rond, Castellum en het charmante Oude Dorp van Houten.
Indeling:
Begane grond: Via de ruime entree kom je in de gang met meterkast en een modern toilet. Aan de linkerzijde vind je de woonkeuken, die halfopen in verbinding staat met de lichte, tuingerichte woonkamer. De woonkamer heeft een laminaatvloer, een trapkast, en biedt toegang tot de achtertuin die voorzien is van screens en zonwering, zodat je het hele jaar door kunt genieten van het buitenleven.
Eerste verdieping: De riante overloop biedt toegang tot twee ruime slaapkamers aan de achterzijde en een kamer aan de voorzijde die nu als ensuite wordt gebruikt, maar ook eenvoudig in twee kamers te verdelen is. Op deze verdieping vind je ook een afzonderlijk toilet en een ruime badkamer, voorzien van een ligbad, douche en wastafelmeubel.
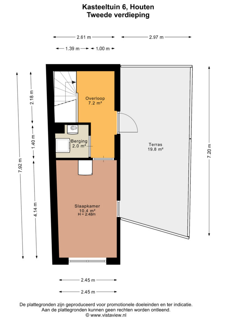
Tweede verdieping: Via een vaste trap bereik je de tweede verdieping, waar je een grote kamer vindt die perfect kan dienen als slaapkamer, werkruimte of hobbykamer. Hier bevindt zich ook de toegang tot het zonnige dakterras, waar je heerlijk van de zon kunt genieten. Daarnaast is er een aparte ruimte voor de cv-installatie en wasapparatuur.
Duurzaam en energiezuinig: De woning is uitgerust met maar liefst 10 zonnepanelen en heeft goede isolatie, wat zorgt voor lage energiekosten en een comfortabele temperatuur in elk seizoen.
Wacht niet te lang en plan snel een bezichtiging! Deze woning is een unieke kans om in een van de mooiste wijken van Houten te wonen, met alles wat je nodig hebt binnen handbereik. Kom kijken en ontdek zelf wat dit huis te bieden heeft!
Aanvaarding: in overleg.
Interesse in dit huis? Schakel direct jouw eigen NVM-aankoopmakelaar in.
De NVM-aankoopmakelaar komt op voor jouw belang en bespaart tijd, geld en zorgen.
Adressen van collega NVM-aankoopmakelaars in Houten zijn te vinden op Funda.
**OPEN HOUSE Saturday, February 14, 2026 from 11:00 a.m. to 12:30 p.m.**
A dream home where space, comfort, and location come together perfectly! This spacious family home in Houten is truly something special. Situated in an ideal location, just a short distance from the beautiful recreational lake De Rietplas, this property offers everything you need. You can also easily cycle to the peaceful countryside, perfect for enjoying nature.
With parking on your own driveway and a sunny garden, this is the perfect home for a family. The property is centrally located, with easy access to major roads and just a stone’s throw from Het Rond, Castellum, and the charming Old Village of Houten.
Layout:
Ground floor: Through the spacious entrance, you enter the hallway with meter cupboard and modern toilet. On the left, you’ll find the kitchen, which is semi-open to the bright, garden-facing living room. The living room features a laminate floor, storage under the stairs, and access to the backyard, equipped with blinds and sunshades, allowing you to enjoy outdoor living year-round.
First floor: The generous landing provides access to two spacious bedrooms at the rear and a room at the front, currently used as an en-suite, but easily convertible into two separate rooms. This floor also has a separate toilet and a large bathroom, featuring a bathtub, shower, and vanity unit.
Second floor: Via a fixed staircase, you reach the second floor, which offers a large room that can serve as a bedroom, office, or hobby space. Here you’ll also find access to the sunny rooftop terrace, perfect for enjoying the sun. Additionally, there is a separate space for the central heating system and laundry appliances.
Sustainable and energy-efficient: The home is equipped with 10 solar panels and good insulation, ensuring low energy costs and a comfortable temperature throughout the year.
Don’t wait too long—schedule a viewing today! This property is a unique opportunity to live in one of Houten’s most beautiful neighborhoods, with everything you need within easy reach. Come and see for yourself what this home has to offer!
Availability: by arrangement.
Interested in this home? Engage your own NVM-buying agent.
An NVM-buying agent represents your interests and saves you time, money, and hassle.
Addresses of fellow NVM-buying agents in Houten can be found on Funda.
Kenmerken
Status |
Beschikbaar |
Toegevoegd |
26-01-2026 |
Vraagprijs |
€ 660.000,- k.k. |
Appartement vve bijdrage |
€ 0,- |
Woonoppervlakte |
139 m2 |
Perceeloppervlakte |
167 m2 |
Externe bergruimte |
9 m2 |
Gebouwgebonden buitenruimte |
20 m2 |
Overige inpandige ruimte |
0 m2 |
Inhoud |
464 m3 |
Aantal kamers |
5 |
Aantal slaapkamers |
4 |
Bouwvorm |
Bestaande bouw |
Energieklasse |
A |
CV ketel type |
Nefit Topline |
Soort(en) verwarming |
Cv Ketel |
CV ketel bouwjaar |
2011 |
CV ketel brandstof |
Gas |
CV ketel eigendom |
Eigendom |
Soort(en) warm water |
Cv Ketel |
Heb je vragen over deze woning?
Neem contact op met
Anne Marie van Bentum
Vestiging
Houten
Wil je ook door ons geholpen worden? Doe onze gratis huiswaarde check!
Je hebt de keuze uit een online waardebepaling of de nauwkeurige waardebepaling. Beide zijn gratis. Uiteraard is het altijd mogelijk om na de online waardebepaling alsnog een afspraak te maken voor een nauwkeurige waardebepaling. Ga je voor een accurate en complete waardebepaling of voor snelheid en gemak?
