Fazantenkamp 924
3607 EG, MAARSSEN
141 m2 wonen
136 m2 perceel
6 kamers
€ 579.000,- k.k.
Kan ik dit huis betalen? Wat worden mijn maandlasten?Deel met je vrienden
Volledige omschrijving
In dit huis is werkelijk aan alles gedacht! Dit zeer ruime en uitgebouwde gezinshuis is hoogwaardig afgewerkt en voorzien van grote woonkeuken met kookeiland, 5 slaapkamers, moderne serre, twee dakkapellen, kunststofkozijnen en een prachtige badkamer. Kom zeker een kijkje nemen als de Fazantenkamp 924 aansluit bij jouw wensen!
De wijk Fazantenkamp is een rustige en kindvriendelijke buurt nabij de diverse uitvalswegen en grenst aan een groot park met op loopafstand een leuke kinderboerderij. Tevens ligt het huis dichtbij scholen, kinderdagverblijven en overige voorzieningen. Op korte afstand ligt het winkelcentrum ‘Bisonspoor’, dit is een groot winkelcentrum met diverse winkels, supermarkten en horeca. Maarssen beschikt over een eigen treinstation met goede verbindingen naar Utrecht en Amsterdam en de busverbinding is ook zeer goed te noemen. Het oude dorpskern van Maarssen en het prachtige buitengebied rondom de Vecht zijn op fietsafstand gelegen.
De indeling van het huis is als volgt:
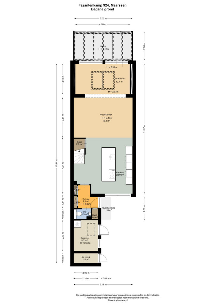
Begane grond: entree, hal, moderne toiletruimte, vernieuwde meterkast en toegangsdeur naar de woonkamer. De lichte en zeer royale woonkamer is aan de achterzijde gelegen en voorzien van grote uitbouw met lichtkoepel, gladde wanden, inbouwspots, visgraat vloer met vloerverwarming en voldoende plek voor een grote hoekbank. In de uitbouw is plek voor een eettafel met plek voor het hele gezin. Grenzend aan de uitbouw is een serre gerealiseerd, ideaal als je ook in de wintermaanden je leefomgeving wil vergroten.
Aan de voorzijde is de prachtige woonkeuken (2021) gesitueerd. De greeploze keuken heeft een moderne look en voorzien van alle gemakken. Met o.a. een inductiekookplaat met geïntegreerd afzuigsysteem, barretje, combi- oven/magnetron, koffiezetapparaat en voldoende bergruimte is dit een keuken waar je zeker heerlijk wil koken voor gasten.
Eerste verdieping: Via de trap in de woonkamer kom je op de eerste verdieping. De overloop biedt toegang tot 3 slaapkamers en een badkamer. De hoofdslaapkamer (12 m²) is aan de voorzijde gesitueerd en biedt voldoende plek voor een tweepersoonsbed. De 2e slaapkamer (11,7 m²) ligt aan de achterzijde en is tevens van goed formaat. De 3e slaapkamer (8,9 m²) ligt ook aan de achterzijde en is een ideale kast-/kinder-/werkkamer. Alle slaapkamers hebben een hoogwaardig afwerkingsniveau met goede vloeren, gladde wanden, nette deuren en inbouwspots. De lichte badkamer (2022) is heel stijlvol ingericht en praktisch ingericht met ligbad, inloopdouche, wastafel, toilet en raampje voor licht en lucht.
Tweede verdieping: via een vaste trap kom je op de zolderverdieping. De voorzolder is voorzien van wasruimte, opstelplaats voor CV-ketel (2012) en tevens is er toegang tot 2 slaapkamers. De 4e slaapkamer (16,6 m²) is zeer ruim en is voorzien van dakkapel. De 5e slaapkamer (8,5 m²) ligt aan de achterzijde en heeft ook een grote dakkapel.
Tuin: via de woonkamer kom je in de heerlijke serre met doorloop naar de achtertuin. De achtertuin is geleden op het noordwesten en is verzorgd ingericht. Tevens heb je een ‘achterom’ en veel groen met daardoor veel privacy. Aan de voorzijde is er een fietsenschuurtje aanwezig en de mogelijkheid om te parkeren op eigen terrein.
Bijzonderheden:
– woonoppervlakte van maar liefst ca. 141 m² en 136 m² perceeloppervlakte;
– hoogwaardig afwerkingsniveau en instapklaar;
– grote woonkeuken, uitbouw en serre;
– 5 slaapkamers en een moderne badkamer;
– voorzien van kunststofkozijnen met HR++ beglazing;
– vernieuwde meterkast, stopcontacten en schakelaars;
– gladde wanden, plafonds en nette vloeren;
– gelegen in een rustige en kindvriendelijke buurt;
– parkeren op eigen terrein;
– energielabel C;
– oplevering in overleg.
In de koopovereenkomst worden de navolgende artikelen opgenomen:
*ouderdomsclausule, vanwege het bouwjaar;
*asbestclausule, vanwege het bouwjaar.
Interesse in dit huis? Schakel direct jouw eigen NVM-aankoopmakelaar in. Jouw NVM-aankoopmakelaar komt op voor jouw belang en bespaart je tijd, geld en zorgen
This house really has everything you could wish for! This very spacious and extended family home has high-quality finishes and features a large kitchen with cooking island, 5 bedrooms, modern conservatory, two dormer windows, plastic window frames, and a beautiful bathroom. Be sure to come and take a look if Fazantenkamp 924 meets your requirements!
The Fazantenkamp neighborhood is a quiet and child-friendly area near various roads and borders a large park with a fun petting zoo within walking distance. The house is also close to schools, daycare centers, and other amenities. A short distance away is the Bisonspoor shopping center, a large shopping center with various shops, supermarkets, and restaurants. Maarssen has its own train station with good connections to Utrecht and Amsterdam, and the bus connection is also very good. The old village center of Maarssen and the beautiful countryside around the Vecht are within cycling distance.
The layout of the house is as follows:
Ground floor: entrance hall, modern toilet, renovated meter cupboard, and door to the living room. The bright and very spacious living room is located at the rear and features a large extension with skylight, smooth walls, recessed spotlights, herringbone flooring with underfloor heating, and enough space for a large corner sofa. The extension has room for a dining table that can seat the whole family. Adjacent to the extension is a conservatory, ideal if you want to expand your living space in the winter months.
The beautiful kitchen (2021) is located at the front. The handle-less kitchen has a modern look and is equipped with all conveniences. With an induction hob with integrated extraction system, bar, combi-oven/microwave, coffee maker, and ample storage space, this is a kitchen where you will definitely want to cook for guests.
First floor: The stairs in the living room lead to the first floor. The landing provides access to three bedrooms and a bathroom. The master bedroom (12 m²) is located at the front and offers enough space for a double bed. The second bedroom (11.7 m²) is located at the rear and is also a good size. The third bedroom (8.9 m²) is also located at the rear and is ideal as a closet, children's room, or study. All bedrooms have a high-quality finish with good flooring, smooth walls, neat doors, and recessed spotlights. The bright bathroom (2022) is very stylishly decorated and practically furnished with a bathtub, walk-in shower, sink, toilet, and window for light and air.
Second floor: a fixed staircase leads to the attic floor. The attic has a laundry room, space for the central heating boiler (2012), and access to two bedrooms. The fourth bedroom (16.6 m²) is very spacious and has a dormer window. The fifth bedroom (8.5 m²) is located at the rear and also has a large dormer window.
Garden: the living room leads to the lovely conservatory with access to the backyard. The backyard faces northwest and is beautifully landscaped. There is also a back entrance and lots of greenery, providing plenty of privacy. At the front, there is a bicycle shed and the possibility to park on your own property.
Details:
- living area of no less than approx. 141 m² and 136 m² plot area;
- high-quality finish and ready to move in;
- large kitchen, extension, and conservatory;
- 5 bedrooms and a modern bathroom;
- fitted with plastic window frames with HR++ glazing;
- renewed meter cupboard, sockets, and switches;
- smooth walls, ceilings, and neat floors;
- located in a quiet and child-friendly neighborhood;
- parking on own property;
- energy label C;
- Delivery in consultation.
The following articles will be included in the purchase agreement:
*Age clause, due to the year of construction;
*Asbestos clause, due to the year of construction.
Interested in this house? Call in your own NVM purchase broker immediately. Your NVM purchase broker will represent your interests and save you time, money, and worry.
Kenmerken
Status |
Onder bod |
Toegevoegd |
27-10-2025 |
Vraagprijs |
€ 579.000,- k.k. |
Appartement vve bijdrage |
€ 0,- |
Woonoppervlakte |
141 m2 |
Perceeloppervlakte |
136 m2 |
Externe bergruimte |
0 m2 |
Gebouwgebonden buitenruimte |
14 m2 |
Overige inpandige ruimte |
14 m2 |
Inhoud |
384 m3 |
Aantal kamers |
6 |
Aantal slaapkamers |
5 |
Bouwvorm |
Bestaande bouw |
Energieklasse |
C |
CV ketel type |
Remeha |
Soort(en) verwarming |
Cv Ketel, Vloerverwarming Gedeeltelijk |
CV ketel bouwjaar |
2012 |
CV ketel brandstof |
Gas |
CV ketel eigendom |
Eigendom |
Soort(en) warm water |
Cv Ketel |
Heb je vragen over deze woning?
Neem contact op met
Dana de Langen
Vestiging
Maarssen
Wil je ook door ons geholpen worden? Doe onze gratis huiswaarde check!
Je hebt de keuze uit een online waardebepaling of de nauwkeurige waardebepaling. Beide zijn gratis. Uiteraard is het altijd mogelijk om na de online waardebepaling alsnog een afspraak te maken voor een nauwkeurige waardebepaling. Ga je voor een accurate en complete waardebepaling of voor snelheid en gemak?
