De Vischkom 6
3451 KC, VLEUTEN
83 m2 wonen
122 m2 perceel
5 kamers
€ 500.000,- k.k.
Kan ik dit huis betalen? Wat worden mijn maandlasten?Deel met je vrienden
Volledige omschrijving
Comfortabel wonen in een rustige, autoluwe buurt met zonnige tuin op het zuiden? In een prettige en kindvriendelijke woonomgeving bieden wij deze super toffe woning aan met vier slaapkamers, een zonnige tuin op het zuiden en volop parkeergelegenheid direct voor de deur. De woning is goed geïsoleerd, voorzien van energielabel A en uitgerust met 6 zonnepanelen (2022). Een ideale woning voor jonge stellen of gezinnen die op zoek zijn naar rust, ruimte én comfort. De woning ligt in een autoluwe buurt, wat zorgt voor privacy en een veilige woonomgeving. Voor de deur bevindt zich een ruim parkeerhof waar zowel jij als je gasten altijd gemakkelijk kunnen parkeren. Wat is het heerlijk wonen in de wijk De Tol. Destijds vooroplopend qua duurzaamheid en gevarieerde bouw en later ook nog uniek qua ligging door de aanleg van het Máximapark en de Haarrijnse plas in de directe omgeving. Met als klap op de vuurpijl heerlijk in het dorp Vleuten. Voorzieningen zoals: scholen en kinderopvang, speeltuinen vind je in de wijk zelf, en op steenworp afstand de dorpskern van Vleuten met winkels en horeca, veel sportmogelijkheden en een treinstation even verderop in Vleuten dorp. De uitvalswegen A2/ring Utrecht zijn goed en ook snel bereikbaar.
De woning vanbinnen….
Via de verzorgde voortuin kom je binnen in de hal met meterkast, trapopgang, en een moderne toiletruimte met fonteintje. Vanuit hier stap je de lichte en ruime woonkamer van circa 33 m² binnen. Dankzij de openslaande deuren én de grote glazen pui in de achtergevel geniet je hier van een heerlijke lichtinval en een fijne verbinding met de tuin.
Aan de voorzijde van de woning bevindt zich de nette inbouwkeuken in L-opstelling, voorzien van voldoende kastruimte en een praktische indeling: een gezellige plek om te koken en samen te zijn.
Eerste verdieping
De ruime overloop geeft toegang tot drie goed bemeten slaapkamers (ca. 11 m², 11 m² en 8 m²) en een keurige, complete badkamer. De badkamer is uitgerust met een ligbad, een inloopdouche en een wastafelmeubel. De frisse witte tegels zorgen voor een tijdloze uitstraling, terwijl het raam zorgt voor prettig daglicht en natuurlijke ventilatie.
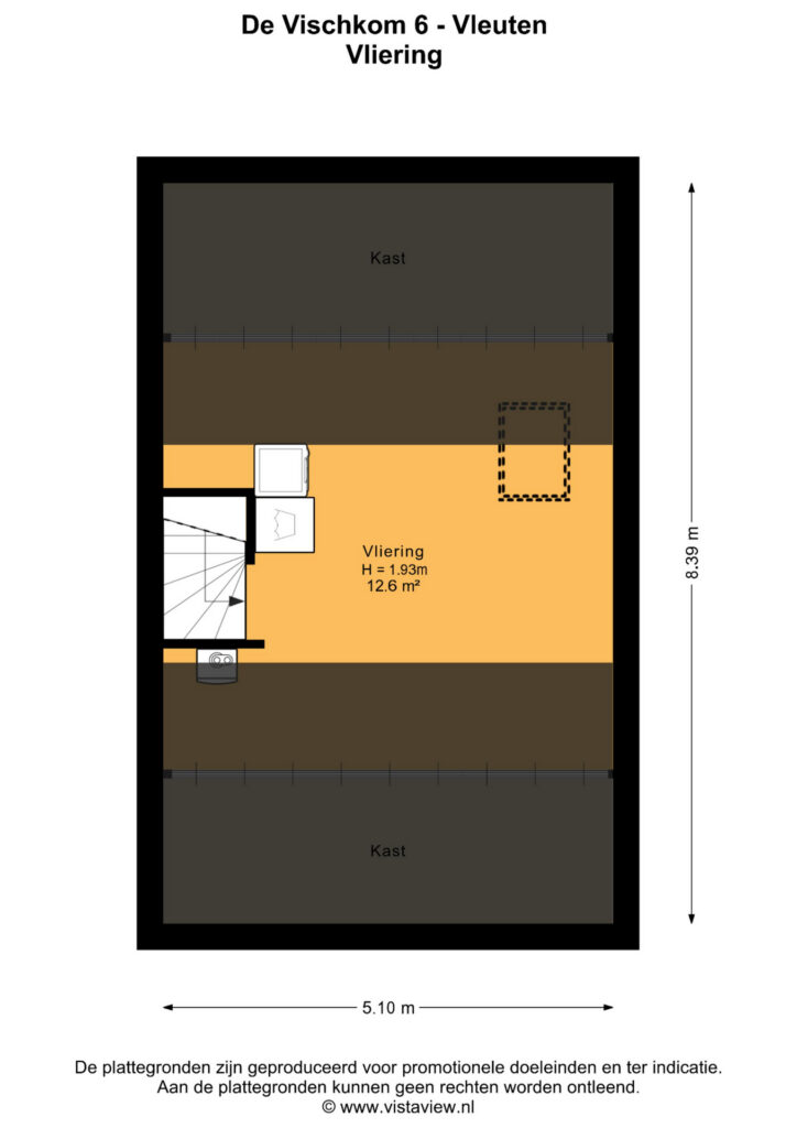
Tweede verdieping
Deze verdieping is al toegankelijk via een vaste trap. Deze verdieping is momenteel niet meegerekend in het woonoppervlak vanwege een nokhoogte van 1,93 m. Echter, wordt deze ruimte vaak wel als slaap- of werkkamer gebruikt (deze ruimte is zonder dakkapel nu al 13m² groot). In de wijk zijn echter veel woningen met een dakkapel, waardoor hier eenvoudig een extra slaapkamer kan worden gerealiseerd. De huidige bewoners beschikken over een offerte voor het plaatsen van twee dakkapellen. Deze kunnen we laten zien en de kosten vielen ons reuze mee. Door deze verbouwing zou je een complete tweede woonverdieping creëren. Nu is het een ruime open zolder met een royaal dakvenster. Tevens bevinden zich hier de witgoedopstelling, cv-installatie, zonneboiler en de omvormer van de zonnepanelen. Deze verdieping is nu in gebruik als werkkamer.
De zonnige achtertuin op het zuiden is echt de kers op de taart. Hier kun je de hele dag genieten van de zon en je eigen privacy. De tuin beschikt over een achterom en een praktische berging, ideaal voor fietsen, gereedschap en tuinspullen.
Bijzonderheden
– Energielabel A;
– 6 zonnepanelen geplaatst in 2022;
– Autoluwe en rustige woonomgeving;
– Er is een recente offerte beschikbaar voor het plaatsen van twee dakkapellen op de tweede verdieping;
plaatsen aan de achterzijde;
– Diepe achtertuin op het zuiden;
Dit zou zomaar jouw volgende hoofdstuk kunnen zijn! Pak deze kans en kom de sfeer zelf proeven tijdens een bezichtiging. Wij laten je deze woning met plezier zien – wie weet ga jij hier straks met de sleutel de deur open.
Want to live comfortably in a quiet, low-traffic neighborhood with a sunny south-facing garden? In a pleasant and child-friendly residential area, we are offering this fantastic house with four bedrooms, a sunny south-facing garden, and plenty of parking right outside the door. The house is well insulated, has an energy label A, and is equipped with six solar panels (2022). An ideal home for young couples or families looking for peace, space, and comfort. The house is located in a low-traffic neighborhood, which ensures privacy and a safe living environment. In front of the door is a spacious parking lot where both you and your guests can always park easily. It is wonderful to live in the De Tol neighborhood. At the time, it was a leader in sustainability and varied construction, and later also became unique in terms of location due to the construction of the Máximapark and the Haarrijnse plas in the immediate vicinity. And to top it all off, it is located in the delightful village of Vleuten. Amenities such as schools, childcare, and playgrounds can be found in the neighborhood itself, and the village center of Vleuten with shops, restaurants, many sports facilities, and a train station is just a stone's throw away in Vleuten village. The A2/Utrecht ring road is easily accessible.
The interior of the house...
Through the well-kept front garden, you enter the hall with meter cupboard, staircase, and a modern toilet with washbasin. From here, you step into the bright and spacious living room of approximately 33 m². Thanks to the French doors and the large glass front in the rear facade, you can enjoy wonderful light and a nice connection to the garden.
At the front of the house is the neat L-shaped fitted kitchen, with ample cupboard space and a practical layout: a cozy place to cook and be together.
First floor
The spacious landing provides access to three good-sized bedrooms (approx. 11 m², 11 m², and 8 m²) and a neat, complete bathroom. The bathroom is equipped with a bathtub, a walk-in shower, and a washbasin. The fresh white tiles create a timeless look, while the window provides pleasant daylight and natural ventilation.
Second floor
This floor is already accessible via a fixed staircase. This floor is currently not included in the living area due to a ridge height of 1.93 m. However, this space is often used as a bedroom or study (this space is already 13 m² without a dormer window). However, many homes in the neighborhood have dormer windows, making it easy to create an extra bedroom here. The current residents have a quote to raise the ridge slightly and install an extra dormer window. We can show you this quote, and we were pleasantly surprised by the reasonable cost. This renovation would create a complete second floor. Currently, it is a spacious open attic with a large skylight. This is also where the white goods, central heating system, solar boiler, and solar panel inverter are located. This floor is currently used as a study.
The sunny south-facing backyard is truly the icing on the cake. Here you can enjoy the sun and your own privacy all day long. The garden has a back entrance and a practical storage shed, ideal for bicycles, tools, and garden equipment.
Special features
- Energy label A;
- 6 solar panels installed in 2022;
- Car-free and quiet residential area;
- There is a recent quote to raise the ridge of the second floor and also install a dormer window
at the rear;
- Deep south-facing backyard;
Kenmerken
Status |
Verkocht onder voorbehoud |
Toegevoegd |
11-02-2026 |
Vraagprijs |
€ 500.000,- k.k. |
Appartement vve bijdrage |
€ 0,- |
Woonoppervlakte |
83 m2 |
Perceeloppervlakte |
122 m2 |
Externe bergruimte |
6 m2 |
Gebouwgebonden buitenruimte |
7 m2 |
Overige inpandige ruimte |
13 m2 |
Inhoud |
339 m3 |
Aantal kamers |
5 |
Aantal slaapkamers |
3 |
WOZ Waarde |
€ 486.000,- |
WOZ Waarde peildatum |
1 januari 2025 |
WOZ Waarde peildatum |
1 januari 2025 |
Bouwvorm |
Bestaande bouw |
Energieklasse |
A |
CV ketel type |
Valiant Calor Matic 350 |
Soort(en) verwarming |
Cv Ketel |
CV ketel bouwjaar |
2013 |
CV ketel brandstof |
Gas |
CV ketel eigendom |
Eigendom |
Soort(en) warm water |
Cv Ketel |
Heb je vragen over deze woning?
Neem contact op met
Susan Mesu
Vestiging
Vleuten | De Meern | Leidsche Rijn
Wil je ook door ons geholpen worden? Doe onze gratis huiswaarde check!
Je hebt de keuze uit een online waardebepaling of de nauwkeurige waardebepaling. Beide zijn gratis. Uiteraard is het altijd mogelijk om na de online waardebepaling alsnog een afspraak te maken voor een nauwkeurige waardebepaling. Ga je voor een accurate en complete waardebepaling of voor snelheid en gemak?
