Brucknerlaan 84
3533 KG, UTRECHT
179 m2 wonen
146 m2 perceel
6 kamers
€ 775.000,- k.k.
Kan ik dit huis betalen? Wat worden mijn maandlasten?Deel met je vrienden
Volledige omschrijving
Deelnemer Open Huizen Dag – zaterdag 4 oktober 2025.
Aan de rand van Oog in Al ligt, enigszins verscholen, de wijk ”Welgelegen”. Dit charmante deel van Utrecht wordt gekenmerkt door een diversiteit aan woningen en veel groen. Als je op zoek bent naar een zeer ruime drive in woning met garage en een prachtige royale tuin maar toch in de stad wilt wonen, dan is dit werkelijk een buitenkans!
De woning is maar liefst 179 m² en beschikt over een inpandige garage. Dankzij de uitbouw en de opbouw biedt dit huis tal van mogelijkheden voor wonen en werken.
De gezellige wijk kenmerkt zich door zijn kindvriendelijke en ‘dorpse’ karakter, terwijl de binnenstad om de hoek is. Op een steenworp afstand liggen voorzieningen zoals diverse goede basisscholen, kinderdagverblijven, een gezondheidscentrum, bibliotheek, cultureel centrum en sportgelegenheden. In de Händelstraat vind je winkels zoals de bakker, delicatessenwinkel ‘Lekkerick’, een ijssalon, de kapper en de supermarkt. In de wijk liggen diverse horecagelegenheden zoals ‘Buurten in de fabriek’, ‘Smoesjes’ en ’Landhuis in de stad’.
Welgelegen is ook een groene wijk met onder meer het park ‘Oog in Al’ waar heerlijk gespeeld, gewandeld en gesport kan worden. Binnen 10 minuten fietsen ben je in de binnenstad, op het Centraal Station of in Leidsche Rijn centrum via de Dafne Schippers fietsbrug. Bushaltes zijn op loopafstand in de wijk en voor de automobilist zijn uitvalswegen als de A2 en A12 dichtbij.
Indeling
Begane grond: Vanaf straatniveau bereik je via een kleine trap omhoog de voordeur van het huis.
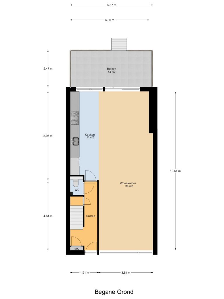
Bel – etage: Entree met meterkast, trapopgang naar de 1e verdieping en trap naar het souterrain. Toegang tot de woonkamer. Ruime woonkamer van maar liefst 49 m ² en een halfopen keuken. De keuken beschikt over diverse inbouwapparatuur. Via de schuifpui aan de achterzijde van het huis is het balkon bereikbaar. Middels een trap vanaf het balkon kom je dan in tuin.
1e verdieping: Overloop, 3 slaapkamers van 14, 13 en 8 m² en de badkamer. De badkamer is voorzien van een inloopdouche, wastafel met meubel en een design radiator.
2e verdieping: Overloop, grote slaapkamer van maar liefst 29 m² met eigen badkamer. Deze beschikt over een douche, toilet en wastafel. Aan beide zijden van de slaapkamer is er een balkon over de volledige breedte van 7 m²
Souterrain: Hal met met meterkast en vaste kast, toegang tot het gedeelte dat thans in gebruik is als schuur. Aparte ruimte waar de aansluiting voor de wasmachine te vinden is, de CV-ketel en een kitchenette. Aparte extra kamer.
Bijzonderheden:
– Bouwjaar: 1960;
– Energielabel: C;
– Woonoppervlakte: 179 m²;
– Drive- in woning;
– Eigen garage;
– Voorzien van 2 badkamers;
– 5 slaapkamers;
– Volledig voorzien van dubbel glas met kunststof kozijnen;
– Verwarming en warm water middels Cv-ketel (Remeha 2003) en extra boiler;
– Parkeren in eigen garage of door middel van vergunning;
– Ouderdoms- en asbestclausule zullen in de koopakte worden opgenomen;
– Oplevering in overleg.
Interesse in deze woning? Neem gerust uw eigen NVM-aankoopmakelaar mee!
Located on the edge of Oog in Al, the 'Welgelegen' neighborhood is somewhat tucked away yet full of charm. This attractive part of Utrecht is known for its variety of homes and abundant greenery. If you're looking for a spacious drive-in home with a garage and a generous garden, all within city limits, this is a rare opportunity.
The property spans an impressive 179 m² and includes an integrated garage. Thanks to both an extension and an additional floor, this home offers numerous possibilities for combined living and working.
The welcoming neighborhood is characterized by its child-friendly, village-like atmosphere, while the city center is just around the corner. Within walking distance, you’ll find amenities such as several good primary schools, daycare centers, a health center, library, cultural center, and sports facilities. The Händelstraat features local shops including a bakery, the delicatessen 'Lekkerick', an ice cream parlor, hair salon, and a supermarket. The area also offers a range of dining options, such as 'Buurten in de Fabriek', 'Smoesjes', and 'Landhuis in de Stad'.
Welgelegen is also a green district, with the nearby ‘Oog in Al’ park offering space for play, walks, and sports. The city center, Utrecht Central Station, and Leidsche Rijn Center are all reachable by bike within 10 minutes via the Dafne Schippers bicycle bridge. Bus stops are located within walking distance, and major motorways such as the A2 and A12 are easily accessible by car.
Layout
Ground floor: From street level, a short staircase leads to the front door.
Main floor: Entrance with utility meter cupboard, staircase to the first floor and stairs to the basement. Access to the spacious 49 m² living room and semi-open kitchen with built-in appliances. The rear sliding door opens onto a balcony with stairs leading down to the garden.
First floor: Landing, three bedrooms measuring 14 m², 13 m², and 8 m², and a bathroom with a walk-in shower, washbasin with vanity unit, and designer radiator.
Second floor: Landing, large master bedroom of 29 m² with a private bathroom featuring a shower, toilet, and sink. Balconies run the full width of the home on both sides (7 m² each).
Basement: Hall with meter cupboard and built-in storage, access to a space currently used as a storage room. Separate room with washing machine connection, central heating boiler, and kitchenette. Additional multi-purpose room.
Additional features:
-Year of construction: 1960
-Energy label: C
-Living area: 179 m²
-Drive-in property
-Private garage
-Two bathrooms
-Five bedrooms
-Fully double-glazed with synthetic window frames
-Heating and hot water via central heating boiler (Remeha, 2003) and additional boiler
-Parking in private garage or via permit
-An age and asbestos clause will be included in the purchase agreement
-Transfer date to be agreed upon
Interested in this property? Feel free to bring your own NVM-certified purchasing agent.
Kenmerken
Status |
Beschikbaar |
Toegevoegd |
07-10-2025 |
Vraagprijs |
€ 775.000,- k.k. |
Appartement vve bijdrage |
€ 0,- |
Woonoppervlakte |
179 m2 |
Perceeloppervlakte |
146 m2 |
Externe bergruimte |
0 m2 |
Gebouwgebonden buitenruimte |
27 m2 |
Overige inpandige ruimte |
19 m2 |
Inhoud |
641 m3 |
Aantal kamers |
6 |
Aantal slaapkamers |
4 |
Bouwvorm |
Bestaande bouw |
Energieklasse |
C |
CV ketel type |
Remeha |
Soort(en) verwarming |
Cv Ketel |
CV ketel bouwjaar |
2003 |
CV ketel brandstof |
Gas |
CV ketel eigendom |
Eigendom |
Soort(en) warm water |
Cv Ketel, Elektrische Boiler Eigendom |
Heb je vragen over deze woning?
Neem contact op met
Manon Roskott
Vestiging
Utrecht
Wil je ook door ons geholpen worden? Doe onze gratis huiswaarde check!
Je hebt de keuze uit een online waardebepaling of de nauwkeurige waardebepaling. Beide zijn gratis. Uiteraard is het altijd mogelijk om na de online waardebepaling alsnog een afspraak te maken voor een nauwkeurige waardebepaling. Ga je voor een accurate en complete waardebepaling of voor snelheid en gemak?
