Bosfazant 11
3435 SM, NIEUWEGEIN
114 m2 wonen
117 m2 perceel
6 kamers
€ 425.000,- k.k.
Kan ik dit huis betalen? Wat worden mijn maandlasten?Deel met je vrienden
Volledige omschrijving
Ruime eengezinswoning met prachtig uitzicht op park in kindvriendelijke wijk “Doorslag”
In de rustige en kindvriendelijke wijk Doorslag bieden wij deze royale eengezinswoning met maar liefst vijf slaapkamers aan. De woning heeft zowel aan de voor- als achterzijde vrij uitzicht op het groen, wat zorgt voor een heerlijk open gevoel. Gelegen in een ruim opgezette buurt met veel groenvoorzieningen, nabij winkels, openbaar vervoer en andere voorzieningen. Een ideaal familiehuis in een prettige leefomgeving!
Deze woning is gelegen in een ruim opgezette woonwijk met brede straten, veel groen en volop speelgelegenheden voor kinderen. De wijk is zeer goed bereikbaar en biedt diverse voorzieningen op loopafstand. Ook het stadscentrum van Nieuwegein en de uitvalswegen naar Utrecht en de snelwegen A2, A12 en A27 zijn binnen enkele minuten te bereiken.
Indeling:
Begane grond:
U betreedt de woning via de verzorgde voortuin. De entree geeft toegang tot de hal met meterkast en een modern toilet met fonteintje. Vanuit de hal loopt u door naar de ruime, tuingerichte woonkamer met een grote raampartij die zorgt voor veel lichtinval en een prettig uitzicht op de achtertuin. De vloer is afgewerkt met duurzame plavuizen en voorzien van comfortabele vloerverwarming, ideaal voor de koudere maanden.
Aan de voorzijde van de woning bevindt zich de open keuken, die is voorzien van een uitgebreide opstelling met veel kastruimte en diverse inbouwapparatuur. De keuken is ruim genoeg, zodat u tijdens het koken kunt genieten van het uitzicht op het groen aan de voorzijde van de woning.
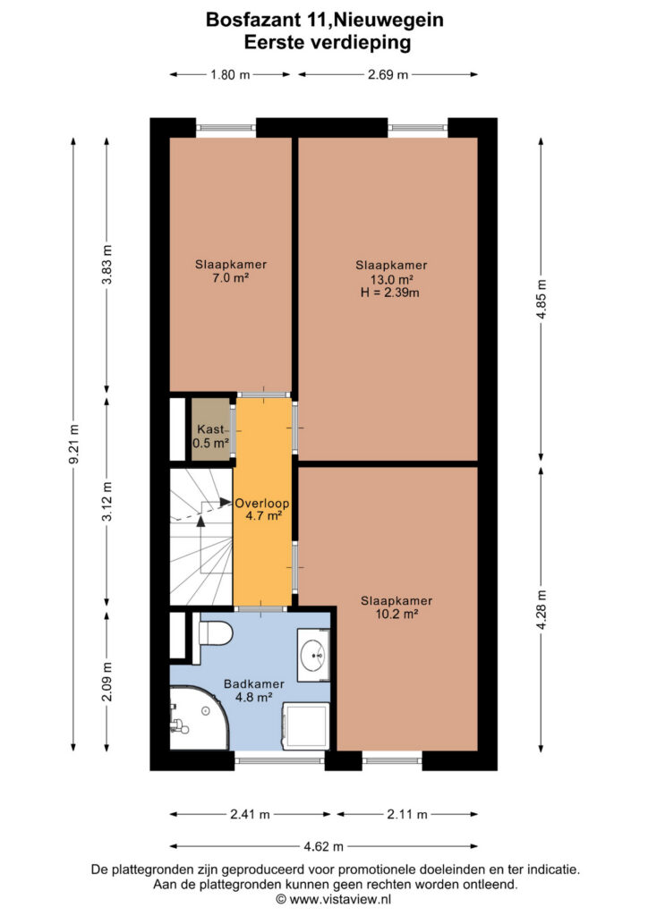
Eerste verdieping:
Op de eerste verdieping bevindt zich een ruime overloop met een vaste kast. U vindt hier drie slaapkamers van verschillende afmetingen, allen met voldoende daglicht en praktische indeling. De badkamer is compleet ingericht met een hangend toilet, een douchecabine, een wastafel met meubel en een aansluiting voor de wasmachine. De ruimte is netjes afgewerkt en functioneel ingericht.
Tweede verdieping:
De tweede verdieping beschikt over een overloop en nog eens twee slaapkamers. De slaapkamer aan de achterzijde is voorzien van een vaste kast en biedt toegang tot een zonnig balkon met uitzicht over de groene omgeving. De andere kamer beschikt over extra bergruimte, ideaal als werkkamer, logeerkamer of hobbyruimte.
Tuin
De diepe achtertuin is grotendeels betegeld en daardoor zeer onderhoudsvriendelijk. De tuin biedt een fijne zonligging, waardoor u op mooie dagen heerlijk buiten kunt zitten. Achterin de tuin bevindt zich een vrijstaande stenen berging, ideaal voor fietsen, tuingereedschap of opslag. De tuin is ook via een achterom bereikbaar.
Bijzonderheden:
– Ruime eengezinswoning met 5 volwaardige slaapkamers
– Vrij uitzicht aan voor- en achterzijde, veel groen en privacy
– Gehele woning voorzien van HR glas, grotendeels kunststof kozijnen
– Stadsverwarming als hoofdverwarming; vloerverwarming op de begane grond
– Muurisolatie aanwezig, wat bijdraagt aan een prettig binnenklimaat en lagere energiekosten
– Diepe en zonnige achtertuin met stenen berging en achterom
Kenmerken
Status |
Onder bod |
Toegevoegd |
21-10-2025 |
Vraagprijs |
€ 425.000,- k.k. |
Appartement vve bijdrage |
€ 0,- |
Woonoppervlakte |
114 m2 |
Perceeloppervlakte |
117 m2 |
Externe bergruimte |
6 m2 |
Gebouwgebonden buitenruimte |
12 m2 |
Overige inpandige ruimte |
0 m2 |
Inhoud |
388 m3 |
Aantal kamers |
6 |
Aantal slaapkamers |
5 |
Bouwvorm |
Bestaande bouw |
Energieklasse |
A |
Soort(en) verwarming |
Stadsverwarming, Vloerverwarming Gedeeltelijk |
Soort(en) warm water |
Stadsverwarming |
Heb je vragen over deze woning?
Neem contact op met
Jolynn Geerts
Vestiging
Nieuwegein
Wil je ook door ons geholpen worden? Doe onze gratis huiswaarde check!
Je hebt de keuze uit een online waardebepaling of de nauwkeurige waardebepaling. Beide zijn gratis. Uiteraard is het altijd mogelijk om na de online waardebepaling alsnog een afspraak te maken voor een nauwkeurige waardebepaling. Ga je voor een accurate en complete waardebepaling of voor snelheid en gemak?
