Benedenmonde 16
3434 KJ, NIEUWEGEIN
109 m2 wonen
134 m2 perceel
5 kamers
€ 425.000,- k.k.
Kan ik dit huis betalen? Wat worden mijn maandlasten?Deel met je vrienden
Volledige omschrijving
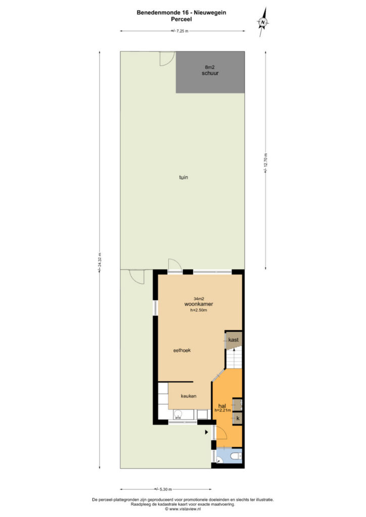
Hoekwoning met een geweldige ligging aan de Benedenmonde, in de woonwijk Lekboulevard. De woning is voorzien van een extra brede tuin, de tuin is circa 94 m² groot. De woonkamer heeft veel natuurlijk daglicht vanwege het zijraam. De woning heeft veel praktische leefruimte, met een ruime keuken en woonkamer en vier slaapkamers van ruim formaat. De woonwijk is erg prettig: vlakbij de Lek en vlakbij alle gewenste voorzieningen zoals scholen, kinderdagverblijven, sportvoorzieningen en winkelcentrum Hoogzandveld. Vanaf hier rijdt je binnen een paar minuten de snelweg op. De woning is gasloos en voorzien van stadsverwarming.
Indeling:
Begane grond:
Entree, hal met meterkast en toilet. De woonkamer is tuingericht en heeft extra veel natuurlijk daglicht vanwege het zijraam. De woonkamer is circa 34 m² groot en er is veel ruimte voor een grote eettafel en een grote bank. De extra brede achtertuin bereik je via de woonkamer en is heerlijk ruim: circa 94 m². Er is een achterom en een houten berging. De keuken ligt aan de voorzijde van de woning en is in L-vorm. Er is veel werk- en bergruimte aanwezig in de keuken.
Eerste verdieping:
Drie slaapkamers van circa 8, 11 en 12 m² groot. Twee van de drie slaapkamers liggen aan de achterzijde van de woning. De badkamer ligt aan de voorzijde en is daardoor voorzien van raampartij voor extra licht en ventilatie. De badkamer is circa 6 m² met tweede toilet, ligbad en wastafelmeubel.
Tweede verdieping:
Ruime kamer van circa 20 m², voorzien van zijraam. Hier bevindt zich de mechanische ventilatie en wasmachine aansluiting.
Bijzonderheden:
– Hoekwoning met een geweldige ligging aan de Benedenmonde;
– Extra brede tuin van circa 94 m² groot;
– De woning heeft veel praktische leefruimte, met vier ruime slaapkamers;
– Gasloos, voorzien van stadsverwarming;
– Gratis parkeren;
– De ligging is ideaal: vlakbij de Lek en vlakbij alle gewenste voorzieningen zoals scholen, kinderdagverblijven, sportvoorzieningen en winkelcentrum Hoogzandveld;
– Binnen enkele minuten op de snelweg.
Oplevering: in overleg
Energielabel: B
Interesse in dit huis? Schakel direct jouw eigen NVM-aankoopmakelaar in.
Jouw NVM-aankoopmakelaar komt op voor jouw belang en bespaart je tijd, geld en zorgen.
Adressen van collega NVM-aankoopmakelaars in Nieuwegein kun je vinden op Funda.
Kenmerken
Status |
Beschikbaar |
Toegevoegd |
27-11-2025 |
Vraagprijs |
€ 425.000,- k.k. |
Appartement vve bijdrage |
€ 0,- |
Woonoppervlakte |
109 m2 |
Perceeloppervlakte |
134 m2 |
Externe bergruimte |
8 m2 |
Gebouwgebonden buitenruimte |
0 m2 |
Overige inpandige ruimte |
0 m2 |
Inhoud |
393 m3 |
Aantal kamers |
5 |
Aantal slaapkamers |
4 |
Bouwvorm |
Bestaande bouw |
Energieklasse |
B |
Soort(en) verwarming |
Stadsverwarming |
Soort(en) warm water |
Stadsverwarming |
Heb je vragen over deze woning?
Neem contact op met
Jolynn Geerts
Vestiging
Nieuwegein
Wil je ook door ons geholpen worden? Doe onze gratis huiswaarde check!
Je hebt de keuze uit een online waardebepaling of de nauwkeurige waardebepaling. Beide zijn gratis. Uiteraard is het altijd mogelijk om na de online waardebepaling alsnog een afspraak te maken voor een nauwkeurige waardebepaling. Ga je voor een accurate en complete waardebepaling of voor snelheid en gemak?
