Lange Uitweg 5a
3998 WD, SCHALKWIJK
352 m2 bedrijfshal
1.215 m2 perceel
Prijs op aanvraag
Deel met je vrienden
Volledige omschrijving
Te huur;
Nieuw gebouwde bedrijfshal gelegen in een bedrijfspand bestaande uit een tweetal identieke hallen. Met een grote overheaddeur en voorbereidingen voor elektra maak het een pand die voor meerdere doeleinden gebruikt kan worden.
De bedrijfshal wordt zowel op de begane grond als de verdieping voorzien van vloerverwarming en van ledverlichting. De bedrijfshal wordt voorzien van een eigen elektra aansluiting en een elektrische overheaddeur. Op zowel de verdieping als de begane grond zijn diverse afvoerpunten aangebracht.
Het terrein zal afsluitbaar worden en voorzien van verharding voor het parkeren en manoeuvreren van voertuigen.
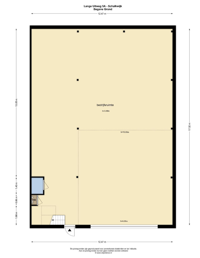
Vloeroppervlak:
De bedrijfshal (links) heeft een oppervlak van ca. 352 m² verhuurbaar vloeroppervlak, als volgt verdeeld:
ca. 214 m² verhuurbaar vloeroppervlak gelegen op de begane grond;
ca. 138 m² verhuurbaar vloeroppervlak gelegen op de eerste verdieping.
Huurprijs:
⬠37.000,= per jaar, te vermeerderen met de wettelijk verschuldigde omzetbelasting.
Voorzieningen:
De bedrijfshal wordt opgeleverd voorzien van de navolgende voorzieningen:
– betonvloer;
– vloerverwarming;
– ledverlichting;
– eigen elektra aansluiting;
– elektrische overheaddeur (6 x 4,2 meter);
– afvoerpunten;
– gedeelde entersolvloer.
De eventuele afbouw met een pantry en toilet zijn in overleg met een huurder.
Ligging/bereikbaarheid:
De landelijke ligging op het Eiland van Schalkwijk, tussen de dorpjes Schalkwijk en Tull en ’t Waal maakt de ligging landelijk maar toch zeer centraal. De bedrijfshal is gelegen in Schalkwijk waar voorzieningen als een supermarkt, basisschool en eetgelegenheden zijn. Houten, Culemborg, Nieuwegein en zelfs de stad Utrecht zijn gemakkelijk bereikbaar.
Bestemming en gebruik:
Enkelbestemming detailhandel en opslag.
Een bestemming kan aan verandering onderhevig zijn. Raadpleeg derhalve voor de actuele gegevens de website omgevingswet.overheid.nl of neem contact op met ons kantoor.
Parkeren:
Er behoren 4 parkeerplaatsen bij de unit, in overleg kunnen er meer parkeerplaatsen worden gerealiseerd.
Servicekosten:
Een nader te benoemen bedrag per maand te vermeerderen met de wettelijk verschuldigde omzetbelasting op voorschotbasis voor de navolgende leveringen en diensten:
– onderhoud buitenterrein;
– afsluiting buitenterrein.
Kosten openbare nutsbedrijven: rechtstreeks door de huurder te voldoen aan desbetreffende nutsbedrijven.
Betalingen: huur, servicekosten en BTW per maand vooruit.
Huurtermijn: 5 jaar met verlengingsperioden van 5 jaar.
Opzegtermijn: uiterlijk 12 maanden voor het aflopen van een huurtermijn.
Huurprijsaanpassing: jaarlijks, voor het eerst ƩƩn jaar na huuringangsdatum, op basis van het consumptieprijsindexcijfer voor alle huishoudens (CPI, als vastgesteld door het CBS, met als basisjaar 2015).
Zekerheidsstelling: een bankgarantie of waarborgsom ter grootte van minimaal drie maanden huur te vermeerderen met servicekosten en BTW.
Overige condities: huurovereenkomst op basis van het standaard model voor de Raad van Onroerende zaken (ROZ).
Aanvaarding: in overleg.
Kenmerken
Status |
Beschikbaar |
Huur |
€ 37.000,- p.j. |
Toegevoegd |
20-11-2025 |
Perceeloppervlakte |
1.215 m2 |
Bedrijfsruimte |
352 m2 |
Aanmeldingsreden |
In verhuur genomen |
