Deel met je vrienden
Volledige omschrijving
Te huur;
Het betreft een representatieve bedrijfsunit gelegen op een levendige locatie centraal in Houten. De bedrijfsunit bestaat uit bedrijfsruimte met kantoorruimte verdeeld over twee bouwlagen.
Vloeroppervlak:
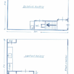
Het betreffende oppervlak is ca. 68 m² verhuurbaar vloeroppervlak, als volgt verdeeld:
ca. 34 m² bedrijfsruimte gelegen op de begane grond;
ca. 34 m² kantoorruimte gelegen op de verdieping.
Parkeren:
De bedrijfsunit beschikt over 2 parkeerplaatsen.
Huurprijs:
⬠995,= per maand te vermeerderen met omzetbelasting.
Voorzieningen:
De bedrijfsunit wordt opgeleverd inclusief:
Bedrijfsruimte (begane grond):
– toilet;
– spoelbak met kraan;
– vrije hoogte ca. 3,65 meter;
– overheaddeur breedte 2,5 x 3,0 meter hoog;
– vloerverwarming en cv-ketel.
kantoorruimte (verdieping):
– aluminium kozijnen voorzien van dubbelglas;
– te openen ramen;
– pantry;
– toilet;
– vloerverwarming.
Ligging/bereikbaarheid:
De bedrijfsunit is gelegen op het bedrijventerrein āDe Schaftā. bereikbaarheid Bedrijventerrein āDe Schaftā is de afgelopen jaren aanzienlijk uitgebreid en geherstructureerd. De locatie is gunstig gelegen ten opzichte van de rijksweg A27 en de NS stations Houten Centrum en Houten Castellum, tevens is er een goede infrastructuur op het terrein zelf. Langs āDe Schaftā loopt een frequente buslijn, die in verbinding staat met de centra van Houten, Nieuwegein en Utrecht. De bushalte is op loopafstand van het object.
Bestemming en gebruik:
Bedrijventerrein.
Een bestemming kan aan verandering onderhevig zijn. Raadpleeg derhalve voor de actuele gegevens de website omgevingswet.overheid.nl of neem contact op met ons kantoor.
De kosten voor de bijdrage van de VvE zijn opgenomen in de huurprijs.
Kosten openbare nutsbedrijven: Rechtstreeks door de huurder te voldoen aan desbetreffende nutsbedrijven.
Betalingen: Huur en BTW per maand vooruit.
Huurtermijn: 3 jaar met een verlengingsperiode van 3 jaar.
Opzegtermijn: Uiterlijk 12 maanden voor het aflopen van een huurtermijn.
Huurprijsaanpassing: Jaarlijks, voor het eerst ƩƩn jaar na huuringangsdatum, op basis van het consumptieprijsindexcijfer voor alle huishoudens (CPI, is vastgesteld door het CBS, met als basisjaar 2015).
Zekerheidsstelling: Afhankelijk van de financiƫle gegoedheid van de kandidaat een bankgarantie ter grootte van minimaal drie maanden huur te vermeerderen met de wettelijk verschuldigde BTW.
Overige condities: Huurovereenkomst op basis van het standaard model van de Raad voor Onroerende Zaken (ROZ).
Aanvaarding: In overleg.
Kenmerken
Status |
Beschikbaar |
Huur |
€ 995,- p.m. |
Toegevoegd |
03-12-2025 |
Bedrijfsruimte |
34 m2 |
Aanmeldingsreden |
In verhuur genomen |
